Objekt 7 fra 14
Nfste objekt
Forrige objekt
Tilbage til oversigt
Tilbage til oversigt
Nfste objekt
Forrige objekt
Tilbage til oversigtBerlin: TINA Modular Home – Compact, Modern, and Functional Living Space
objektnr.: DE-MTina
Hurtig kontakt
Valgmuligheder
Valgmuligheder
Nxgletal
Adresse:
10117 Berlin
Område:
Beboelsesområde
Pris:
Pris ved forespxrgsel
Boligareal ca.:
45 m2
Antal vfrelser:
2
Andre data
Andre data
Hustype:
Andet
Antal sovevfrelser:
1
Antal badevfrelser:
1
Udfxrlig beskrivelse
Udfxrlig beskrivelse
Objektbeskrivelse:
TINA Modular Home – Compact, Modern, and Functional Living Space
Location: Germany
Project Name: TINA
Status: New – Ready to Order
General Information:
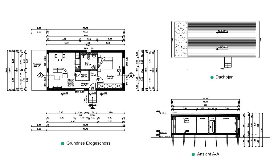
The TINA model offers a total living space of 44.89 m² with a compact design and modular structure.
The total gross area is 56.16 m², composed of 2 modules that are assembled on-site. A terrace can be added optionally.
Interior materials can be customized according to individual preferences.
It’s an ideal solution for singles or couples seeking a minimalist and efficient lifestyle.
Technical Specifications:
Living Area: 44.89 m²
Total Gross Area: 56.16 m²
Number of Modules: 2
Floors: Single Floor
Floor Plan:
Ground Floor: Living room + kitchen, bathroom, hallway, bedroom, storage, entrance
Terrace: Optional
Foundation: Screw pile system
Advantages:
✅ Compact and stylish design for modern living
✅ Single-level layout with easy access
✅ Fast on-site assembly thanks to modular design
✅ Customizable interiors
✅ Durable and high-quality structure
Contact:
📞 +49 151 475 33931
📧 info@gloim.com
🌐 www.gloim.com
Location: Germany
Project Name: TINA
Status: New – Ready to Order
General Information:
The TINA model offers a total living space of 44.89 m² with a compact design and modular structure.
The total gross area is 56.16 m², composed of 2 modules that are assembled on-site. A terrace can be added optionally.
Interior materials can be customized according to individual preferences.
It’s an ideal solution for singles or couples seeking a minimalist and efficient lifestyle.
Technical Specifications:
Living Area: 44.89 m²
Total Gross Area: 56.16 m²
Number of Modules: 2
Floors: Single Floor
Floor Plan:
Ground Floor: Living room + kitchen, bathroom, hallway, bedroom, storage, entrance
Terrace: Optional
Foundation: Screw pile system
Advantages:
✅ Compact and stylish design for modern living
✅ Single-level layout with easy access
✅ Fast on-site assembly thanks to modular design
✅ Customizable interiors
✅ Durable and high-quality structure
Contact:
📞 +49 151 475 33931
📧 info@gloim.com
🌐 www.gloim.com
Din kontaktperson
Tilbage til oversigt




