Objekt 14 fra 15
Nfste objekt
Forrige objekt
Tilbage til oversigt
code
Tilbage til oversigt
Nfste objekt
Forrige objekt
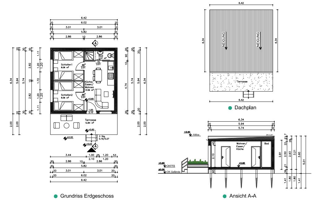
Tilbage til oversigtBerlin: Modular Home Type “FABIENNE” – Designed for Families, Efficient and Modern Living
objektnr.: DE-MFabienne
Hurtig kontakt
Valgmuligheder
Valgmuligheder
Nxgletal
Adresse:
10117 Berlin
Pris:
Pris ved forespxrgsel
Boligareal ca.:
31 m2
Antal vfrelser:
3
Andre data
Andre data
Hustype:
Andet
Antal sovevfrelser:
2
Udfxrlig beskrivelse
Udfxrlig beskrivelse
Objektbeskrivelse:
Modular Home Type “FABIENNE” – Designed for Families, Efficient and Modern Living
FABIENNE – Ideal for Families and Small Groups
The “Fabienne” model is a modular home solution offering 23.68 m² of living space and 36.52 m² of gross area. With a compact design and two separate bedrooms (each 8.06 m²), it ensures comfort for families or small groups. The central living and kitchen area (13.56 m²) promotes communal living. An optional terrace of 12.84 m² adds outdoor usability. This 1-module home is ideal for those seeking functionality and a modern lifestyle in a compact structure.
Advantages:
✅ Fast delivery thanks to modular setup✅ Customizable interiors upon request✅ Compact, modern design compatible with nature✅ Multiple layout options to meet various needs
Contact:📧 info@gloim.com📞 +49 151 475 33931🌐 www.gloim.com
FABIENNE – Ideal for Families and Small Groups
The “Fabienne” model is a modular home solution offering 23.68 m² of living space and 36.52 m² of gross area. With a compact design and two separate bedrooms (each 8.06 m²), it ensures comfort for families or small groups. The central living and kitchen area (13.56 m²) promotes communal living. An optional terrace of 12.84 m² adds outdoor usability. This 1-module home is ideal for those seeking functionality and a modern lifestyle in a compact structure.
Advantages:
✅ Fast delivery thanks to modular setup✅ Customizable interiors upon request✅ Compact, modern design compatible with nature✅ Multiple layout options to meet various needs
Contact:📧 info@gloim.com📞 +49 151 475 33931🌐 www.gloim.com
Din kontaktperson
Tilbage til oversigt




