Objekt 12 fra 12
Forrige objekt
Tilbage til oversigt
Tilbage til oversigt
Forrige objekt
Tilbage til oversigtBaierbrunn:
objektnr.: WW183
Hurtig kontakt
Valgmuligheder
Valgmuligheder
Nxgletal
Adresse:
82065 Baierbrunn
Bayern
Bayern
Pris:
1.400.000 €
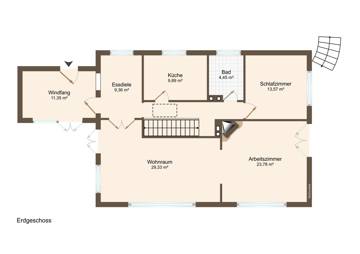
Boligareal ca.:
150,29 m2
Grundstykke:
1.002 m2
Antal vfrelser:
5
Andre data
Andre data
Hustype:
Villa
Udnyttet areal ca.:
35,04 m2
Antal sovevfrelser:
3
Antal badevfrelser:
2
Balkon:
1
Terrasse:
1
Kflder:
med fuld kælder
Byggeer:
1959
Opvarmning:
Centralvarme
Opvarmningstype:
Olie
Dokumentationstype for energi:
certifikat efterspørgsel - udløbsdato 17.02.2033
Energieffektivitetsklasse:
H
Slutforbrug af energi:
272,50 kWh/(m²*a)
Byggeer ifølge energiattest:
1959
Din kontaktperson
Tilbage til oversigt
















