Object 14 de 15
Objet suivant
Objet précédent
Retour au sommaire

Berlin:

N° de l´objet: DE-MFabienne
  • 2
  • 1
  • 3
2
1
3
Contact rapide
Données clés
Adresse:
10117 Berlin
Prix:
Prix sur demande
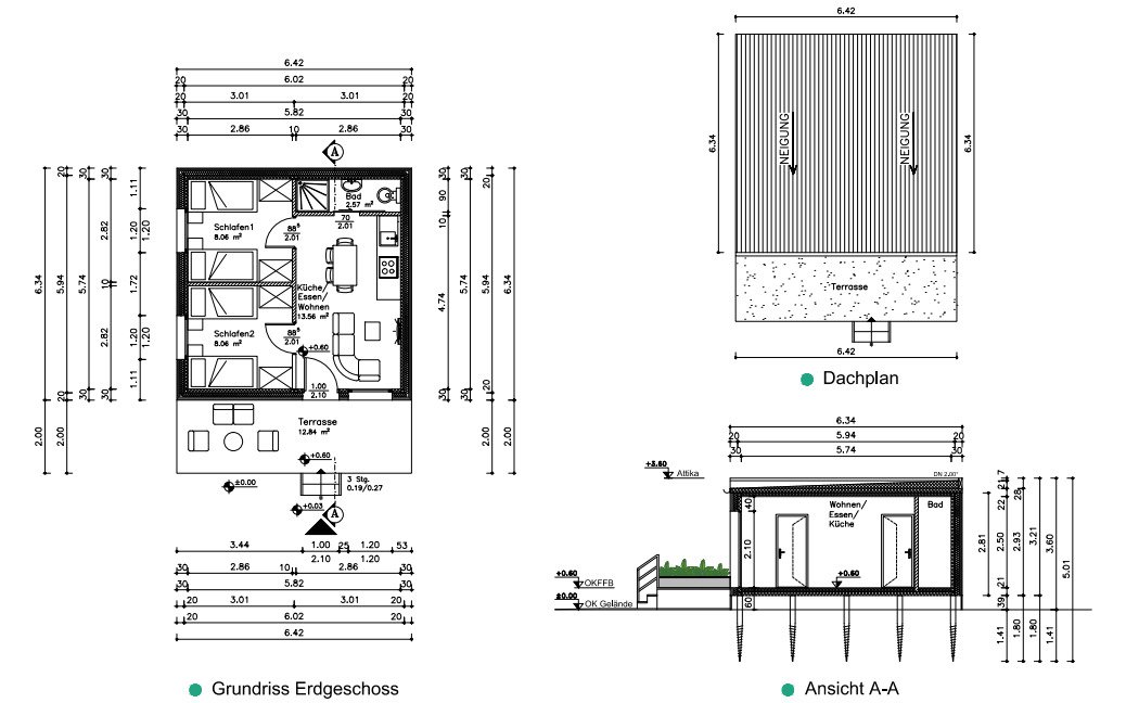
Surface habitable env.:
31 m².
Nombre de pièces:
3
Autres données
Autres données
Type de maison:
Autres
Nombre de chambres à coucher:
2
Votre interlocuteur
 


Gloim
Téléphone: 0090 543 828 7362
Fax: Keine Termine vor Ort
code

Retour au sommaire