Object 2 de 10
Objet suivant
Objet précédent
Retour au sommaire
Retour au sommaire
Objet suivant
Objet précédent
Retour au sommaireBaierbrunn:
N° de l´objet: News 26/152
Contact rapide
Options
Options
Données clés
Adresse:
82065 Baierbrunn
Bayern
Bayern
Prix:
1.400.000 €
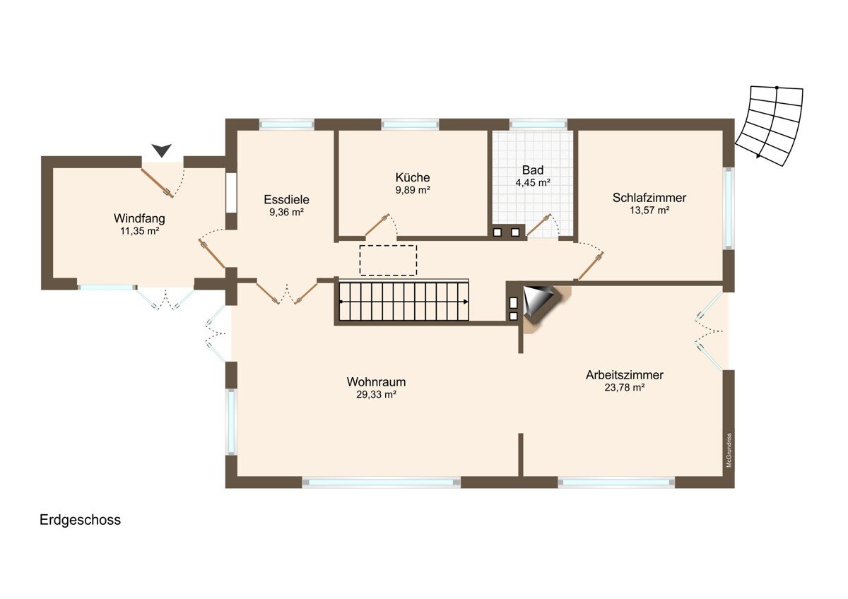
Surface habitable env.:
150,29 m².
Terrain env.:
1.002 m².
Nombre de pièces:
5
Autres données
Autres données
Type de maison:
Villa
Surface utile env.:
35,04 m².
Nombre de chambres à coucher:
3
Nombre de salles de bain:
2
Balcon:
1
Terrasse:
1
Cave:
Complètement sous-terrain
Année de construction:
1959
Chauffage:
Chauffage central
Type de chauffage:
Mazout
Type d´identification de l´énergie:
certificat de demande - date d'expiration 17.02.2033
Classe d'efficacité énergétique:
H
Besoin en énergie finale:
272,50 kWh/(m²*a)
Année de construction d'après la certification énergétique:
1959
Votre interlocuteur
Retour au sommaire
















