Objecto 14 de 15
Próximo objecto
Objecto anterior
Voltar à perspectiva geral
Voltar à perspectiva geral
Próximo objecto
Objecto anterior
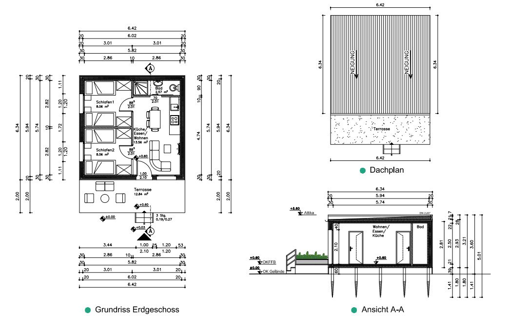
Voltar à perspectiva geralBerlin: Modular Home Type “FABIENNE” – Designed for Families, Efficient and Modern Living
Nr° do objecto: DE-MFabienne
Contacto rápido
Opções
Opções
Dados principais
Endereço:
10117 Berlin
Preço:
Preço a combinar
Área residencial com cerca de:
31 m²
Número de quartos:
3
Outros dados
Outros dados
Tipo de casa:
Outros
Número dos quartos de dormir:
2
Descrição detalhada
Descrição detalhada
Descrição do objecto:
Modular Home Type “FABIENNE” – Designed for Families, Efficient and Modern Living
FABIENNE – Ideal for Families and Small Groups
The “Fabienne” model is a modular home solution offering 23.68 m² of living space and 36.52 m² of gross area. With a compact design and two separate bedrooms (each 8.06 m²), it ensures comfort for families or small groups. The central living and kitchen area (13.56 m²) promotes communal living. An optional terrace of 12.84 m² adds outdoor usability. This 1-module home is ideal for those seeking functionality and a modern lifestyle in a compact structure.
Advantages:
✅ Fast delivery thanks to modular setup✅ Customizable interiors upon request✅ Compact, modern design compatible with nature✅ Multiple layout options to meet various needs
Contact:📧 info@gloim.com📞 +49 151 475 33931🌐 www.gloim.com
FABIENNE – Ideal for Families and Small Groups
The “Fabienne” model is a modular home solution offering 23.68 m² of living space and 36.52 m² of gross area. With a compact design and two separate bedrooms (each 8.06 m²), it ensures comfort for families or small groups. The central living and kitchen area (13.56 m²) promotes communal living. An optional terrace of 12.84 m² adds outdoor usability. This 1-module home is ideal for those seeking functionality and a modern lifestyle in a compact structure.
Advantages:
✅ Fast delivery thanks to modular setup✅ Customizable interiors upon request✅ Compact, modern design compatible with nature✅ Multiple layout options to meet various needs
Contact:📧 info@gloim.com📞 +49 151 475 33931🌐 www.gloim.com
O seu parceiro de contacto
Voltar à perspectiva geral




