Объект 30 от 33
Следующий объект
Предыдущий объект
Назад к просмотру

Alanya Avsallar Incekum: Супер вилла по Супер цене под ключ!!!

№ объекта: AvsPro03
  •  
  •  
  •  
 
 
 
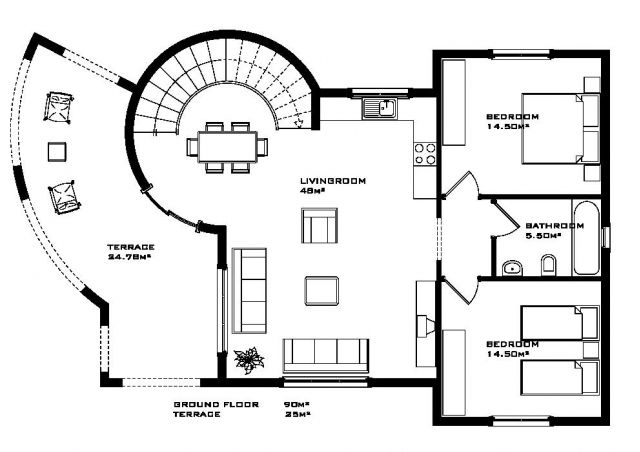
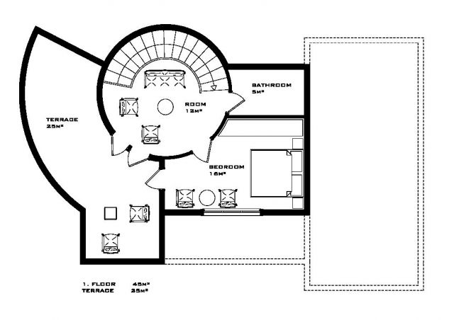
Основные параметры
Адрес:
07410 Alanya Avsallar Incekum
Цена:
124.999 €
Жилая площадь:
135 кв.м
Земельный участок ок.:
500 кв.м
Количество комнат:
4
Другие данные
Другие данные
Тип дома:
Вилла
Количество этажей:
2
Кухня:
Встроенная кухня
Ванная:
Душ, Ванна, Окно
Количество спальных комнат:
3
Количество ванных комнат:
2
Терраса:
2
Камин:
Да
Бассейн:
Да
Подвал:
с полностью подвальным помещением
Кондиционер:
Да
Количество мест автостоянки:
1 x Парковка снаружи
Вид из окна:
Вид на озеро
Качество отделки:
Люкс
Год постройки:
2023
Фаза строительства:
В проекте
Покрытие пола:
Ламинат
Состояние:
В проекте
Отопление:
Пол
Подробное описание
Подробное описание
Описание объекта:
Полностью шикарно укомплектованная вилла по отличной цене, 30 метровый бассейн включительно. Вам осталось только выбрать участок из того ассортимента, что мы предлагаем. Мы уверенны, что найдем для вас самый подходящий. Срок строительства после получения лицензии на застройку участка не займет больше 6 месяцев.
Обстановка:
Кровля марки Брааш
Металлическая входная дверь
Панельные межкомнатные двери
Звуко и теплоизолированные стены
Двойные стеклопакеты на окнах и электрические жалюзи
Бытовая техника на кухне
В жилых комнатах ламинат
Точечное освещение
Подвесной потолок с точечными светильниками в ванной
На кухне, в салоне и ванной керамические полы
Шкафчики в ванной
Пластиковые душевые кабины
Вешалка с подогревом для полотенец в ванной
Электрический водонагреватель
Полы с подогревом в ванной
Кабель для спутниковой антенны
Телефонная линия
Во всех комнатах кондиционеры
Аллюминевые защитные поручни на балконе и лестнице
Плавательный бассейн
Автостоянка
Примечание:
Наша Фирма не несет ответственность за неполную или неточную информацию предоставленную Продавцом объекта. Объект может быть продан без нашего сведения.
Обращаясь к нам за услугами, вы автоматически соглашаетесь с нашими коммерческими условиями.
По желанию мы предоставим вам консультацию об объекте недвижимости и его стоимости.
Ваше контактное лицо
 


Gloim
Телефон: 0090 543 828 7362
Факс: Keine Termine vor Ort
code

Назад к просмотру