Objekt 7 från 14
nästa objekt
föregående objekt
tillbaka till översikten
code
tillbaka till översikten
nästa objekt
föregående objekt
tillbaka till översiktenBerlin: MILLA Modular Home – Functional Two-Story House with Rooftop Terrace
objekt-nr.: DE-MMila
Snabbkontakt
alternativ
alternativ
huvuddata
adress:
10117 Berlin
Område:
Bostadsområde
pris:
pris efter förfrågan
bostadsyta ca.:
88 kvm.
antal rum:
4
ytterligare data
ytterligare data
Hustyp:
övrigt
Antal sovrum:
2
Utförlig beskrivning
Utförlig beskrivning
Objektsbeskrivning:
MILLA Modular Home – Functional Two-Story House with Rooftop Terrace
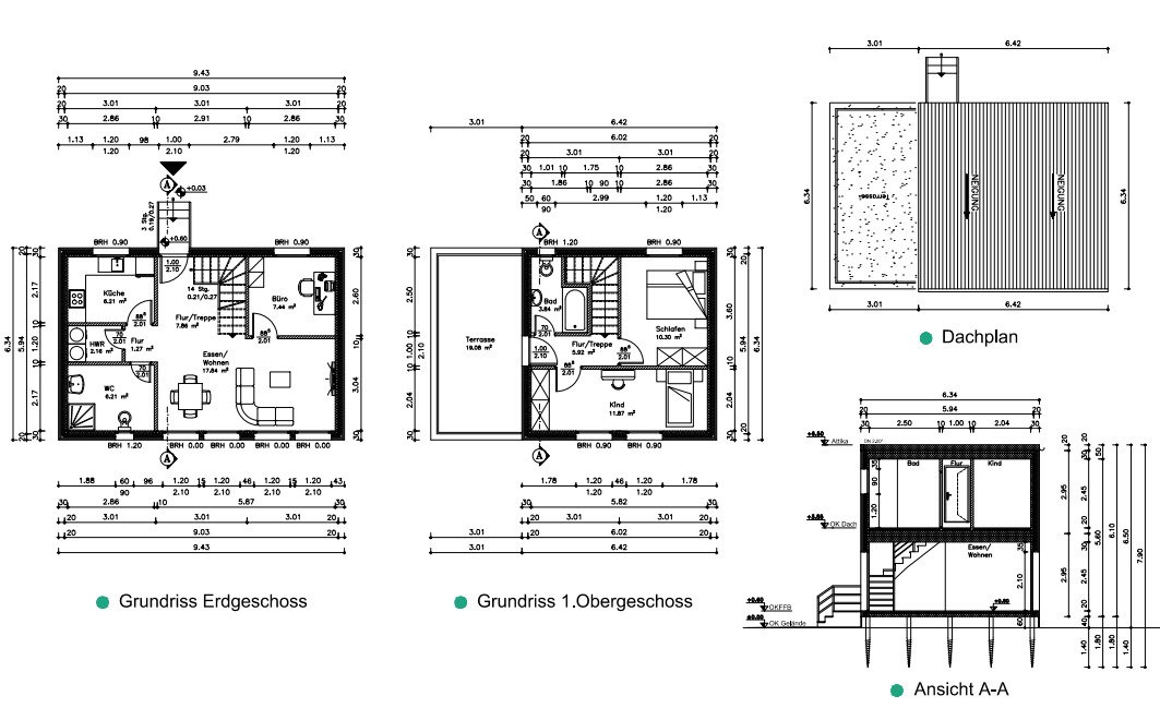
The MILLA model offers 87.28 m² of living space and up to 107.60 m² of gross floor area (including a rooftop terrace). The house is composed of 5 modules assembled on-site into a modern two-story residence.
Ground Floor: Kitchen, living/dining area, office, WC, utility room, hallway and stairs
Upper Floor: Two bedrooms, bathroom, rooftop terrace, circulation
Terrace Area: 19.05 m² rooftop terrace
Total Gross Area: 2 x 60.16 m² = 120.32 m² (usable: 107.60 m²)
Advantages:
✅ Two-story modern modular design
✅ Spacious layout with rooftop terrace
✅ Fast assembly and sustainable construction
✅ Customizable interior materials
Contact:
📧 info@gloim.com
📞 +49 151 475 33931
🌐 www.gloim.com
The MILLA model offers 87.28 m² of living space and up to 107.60 m² of gross floor area (including a rooftop terrace). The house is composed of 5 modules assembled on-site into a modern two-story residence.
Ground Floor: Kitchen, living/dining area, office, WC, utility room, hallway and stairs
Upper Floor: Two bedrooms, bathroom, rooftop terrace, circulation
Terrace Area: 19.05 m² rooftop terrace
Total Gross Area: 2 x 60.16 m² = 120.32 m² (usable: 107.60 m²)
Advantages:
✅ Two-story modern modular design
✅ Spacious layout with rooftop terrace
✅ Fast assembly and sustainable construction
✅ Customizable interior materials
Contact:
📧 info@gloim.com
📞 +49 151 475 33931
🌐 www.gloim.com
Din kontaktperson
tillbaka till översikten




