Objekt 14 från 15
nästa objekt
föregående objekt
tillbaka till översikten

Berlin: Modular Home Type “FABIENNE” – Designed for Families, Efficient and Modern Living

objekt-nr.: DE-MFabienne
  • 2
  • 1
  • 3
2
1
3
Snabbkontakt
huvuddata
adress:
10117 Berlin
pris:
pris efter förfrågan
bostadsyta ca.:
31 kvm.
antal rum:
3
ytterligare data
ytterligare data
Hustyp:
övrigt
Antal sovrum:
2
Utförlig beskrivning
Utförlig beskrivning
Objektsbeskrivning:
Modular Home Type “FABIENNE” – Designed for Families, Efficient and Modern Living

FABIENNE – Ideal for Families and Small Groups
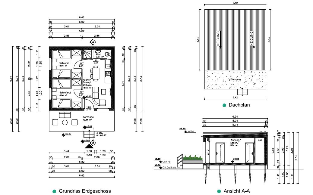
The “Fabienne” model is a modular home solution offering 23.68 m² of living space and 36.52 m² of gross area. With a compact design and two separate bedrooms (each 8.06 m²), it ensures comfort for families or small groups. The central living and kitchen area (13.56 m²) promotes communal living. An optional terrace of 12.84 m² adds outdoor usability. This 1-module home is ideal for those seeking functionality and a modern lifestyle in a compact structure.

Advantages:
✅ Fast delivery thanks to modular setup✅ Customizable interiors upon request✅ Compact, modern design compatible with nature✅ Multiple layout options to meet various needs

Contact:📧 info@gloim.com📞 +49 151 475 33931🌐 www.gloim.com
Din kontaktperson
 


Gloim
telefon: 0090 543 828 7362
fax: Keine Termine vor Ort
code

tillbaka till översikten