Objekt 43 fra 80
Nfste objekt
Forrige objekt
Tilbage til oversigt
code
Tilbage til oversigt
Nfste objekt
Forrige objekt
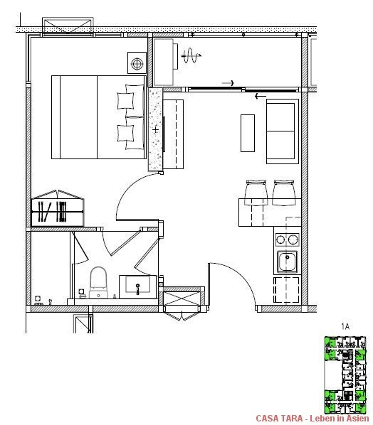
Tilbage til oversigtPattaya / Pratumnak:
objektnr.: JT_tre
Hurtig kontakt
Valgmuligheder
Valgmuligheder
Nxgletal
Adresse:
20150 Pattaya / Pratumnak
Pris:
81.000 €
Boligareal ca.:
35 m2
Antal vfrelser:
2
Andre data
Andre data
Lejlighedstype:
Etagelejlighed
Etageantal:
8
Provisionspligtig:
nej
Køkken:
Elementkxkken
Bad:
Bruser
Antal sovevfrelser:
1
Antal badevfrelser:
1
Balkon:
1
Pool:
ja
Klimaanlfg:
ja
Elevator:
ja
Møblering:
ja
Byggeer:
2015
Gulvbelfgning:
Fliser
Tilstand:
Fxrste indflytning
Din kontaktperson
Tilbage til oversigt












