Property 7 from 15
Next property
Previous property
Back to the overview
Back to the overview
Next property
Previous property
Back to the overviewBerlin: TINA Modular Home – Compact, Modern, and Functional Living Space
Property ID: DE-MTina
Quick Contact
Options
Options
Basic information
Address:
10117 Berlin
Area:
Residential area
Price:
Price on request
Living space:
45 sq. m.
No. of rooms:
2
Details
Details
Type of house:
Miscellaneous
Number of bedrooms:
1
Number of bathrooms:
1
Further information
Further information
Property description:
TINA Modular Home – Compact, Modern, and Functional Living Space
Location: Germany
Project Name: TINA
Status: New – Ready to Order
General Information:
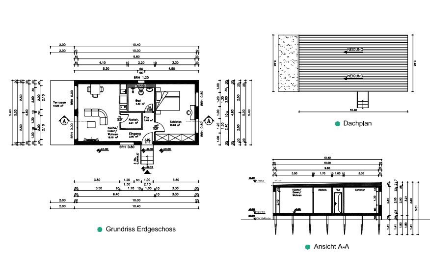
The TINA model offers a total living space of 44.89 m² with a compact design and modular structure.
The total gross area is 56.16 m², composed of 2 modules that are assembled on-site. A terrace can be added optionally.
Interior materials can be customized according to individual preferences.
It’s an ideal solution for singles or couples seeking a minimalist and efficient lifestyle.
Technical Specifications:
Living Area: 44.89 m²
Total Gross Area: 56.16 m²
Number of Modules: 2
Floors: Single Floor
Floor Plan:
Ground Floor: Living room + kitchen, bathroom, hallway, bedroom, storage, entrance
Terrace: Optional
Foundation: Screw pile system
Advantages:
✅ Compact and stylish design for modern living
✅ Single-level layout with easy access
✅ Fast on-site assembly thanks to modular design
✅ Customizable interiors
✅ Durable and high-quality structure
Contact:
📞 +49 151 475 33931
📧 info@gloim.com
🌐 www.gloim.com
Location: Germany
Project Name: TINA
Status: New – Ready to Order
General Information:
The TINA model offers a total living space of 44.89 m² with a compact design and modular structure.
The total gross area is 56.16 m², composed of 2 modules that are assembled on-site. A terrace can be added optionally.
Interior materials can be customized according to individual preferences.
It’s an ideal solution for singles or couples seeking a minimalist and efficient lifestyle.
Technical Specifications:
Living Area: 44.89 m²
Total Gross Area: 56.16 m²
Number of Modules: 2
Floors: Single Floor
Floor Plan:
Ground Floor: Living room + kitchen, bathroom, hallway, bedroom, storage, entrance
Terrace: Optional
Foundation: Screw pile system
Advantages:
✅ Compact and stylish design for modern living
✅ Single-level layout with easy access
✅ Fast on-site assembly thanks to modular design
✅ Customizable interiors
✅ Durable and high-quality structure
Contact:
📞 +49 151 475 33931
📧 info@gloim.com
🌐 www.gloim.com
Your contact person
Back to the overview




