Property 10 from 14
Next property
Previous property
Back to the overview
code
Back to the overview
Next property
Previous property
Back to the overviewBerlin: BAMBOO Modular Home – Modern and Sustainable Living for Families
Property ID: DE- MBamboo
Quick Contact
Options
Options
Basic information
Address:
10117 Berlin
Area:
Residential area
Price:
Price on request
Living space:
67 sq. m.
No. of rooms:
3
Details
Details
Type of house:
Miscellaneous
Number of bedrooms:
2
Further information
Further information
Property description:
BAMBOO Modular Home – Modern and Sustainable Living for Families
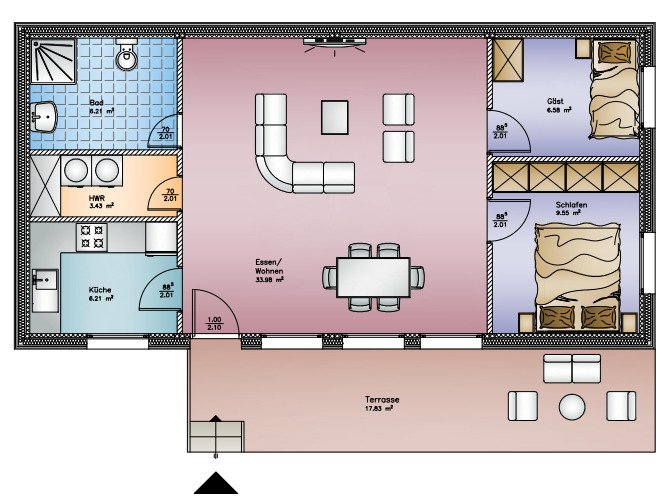
General Information:The BAMBOO model offers 65.96 m² of living space and a total gross area of 79.36 m², made up of 4 prefabricated modules. An optional terrace of 17.63 m² can be added. The house is assembled on-site and can be delivered barrier-free upon request.
Layout:
Spacious living/dining room (33.98 m²)
Separate kitchen (6.21 m²)
Master bedroom (9.35 m²)
Guest room (6.68 m²)
Bathroom and utility room (HWR)
Advantages:✅ Spacious layout with 4 modules✅ Open plan living and large living room✅ High energy efficiency and eco-friendly design✅ Quick on-site assembly and delivery✅ Optional terrace for outdoor enjoyment
Contact Information:📧 info@gloim.com📞 +49 151 475 33931🌐 www.gloim.com
General Information:The BAMBOO model offers 65.96 m² of living space and a total gross area of 79.36 m², made up of 4 prefabricated modules. An optional terrace of 17.63 m² can be added. The house is assembled on-site and can be delivered barrier-free upon request.
Layout:
Spacious living/dining room (33.98 m²)
Separate kitchen (6.21 m²)
Master bedroom (9.35 m²)
Guest room (6.68 m²)
Bathroom and utility room (HWR)
Advantages:✅ Spacious layout with 4 modules✅ Open plan living and large living room✅ High energy efficiency and eco-friendly design✅ Quick on-site assembly and delivery✅ Optional terrace for outdoor enjoyment
Contact Information:📧 info@gloim.com📞 +49 151 475 33931🌐 www.gloim.com
Your contact person
Back to the overview




