Property 43 from 80
Next property
Previous property
Back to the overview
code
Back to the overview
Next property
Previous property
Back to the overviewPattaya / Pratumnak:
Property ID: JT_tre
Quick Contact
Options
Options
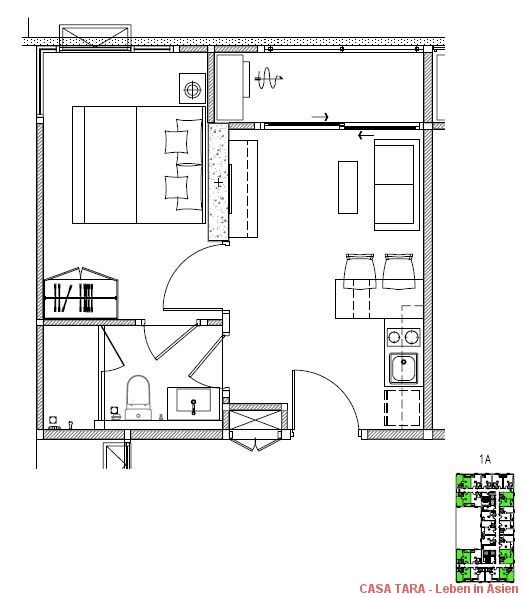
Basic information
Address:
20150 Pattaya / Pratumnak
Price:
81.000 €
Living space:
35 sq. m.
No. of rooms:
2
Details
Details
Type of apartment:
Single storey apartment
Number of floors:
8
Subject to commission:
no
Kitchen:
Fitted kitchen
Bathroom:
Shower
Number of bedrooms:
1
Number of bathrooms:
1
Balcony:
1
Pool:
yes
Air condition:
yes
Lift:
yes
Furnished:
yes
Year of construction:
2015
Floor covering:
Tiles
Condition:
First occupier
Your contact person
Back to the overview












