Object 43 de 80
Objet suivant
Objet précédent
Retour au sommaire
code
Retour au sommaire
Objet suivant
Objet précédent
Retour au sommairePattaya / Pratumnak:
N° de l´objet: JT_tre
Contact rapide
Options
Options
Données clés
Adresse:
20150 Pattaya / Pratumnak
Prix:
81.000 €
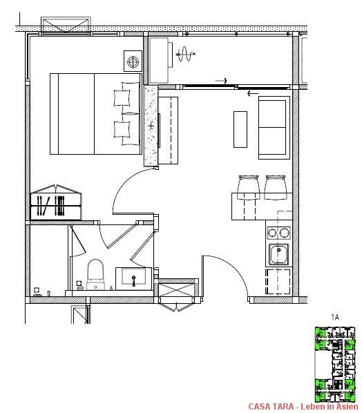
Surface habitable env.:
35 m².
Nombre de pièces:
2
Autres données
Autres données
Type d´appartement:
Duplex
Nombre d´étages:
8
Soumis à commission:
Non
Cuisine:
Cuisine aménagée
Salle de bain:
Douche
Nombre de chambres à coucher:
1
Nombre de salles de bain:
1
Balcon:
1
Piscine:
Oui
Climatisation:
Oui
Ascenseur:
Oui
Ameublement:
Oui
Année de construction:
2015
Revêtement au sol:
Carrelage
État:
Premier occupant
Votre interlocuteur
Retour au sommaire












