Object 1 van 1
Terug naar het overzicht
code
Terug naar het overzicht
Terug naar het overzichtAlanya Avsallar Incekum: Einstiegsobjekt !!! Schnäppchenpreis !!!Schlüsselfertige Neubauvilla mit Super-Ausstattung und Pool inkl.
Object-Nr.: AvsPro03
Snel contact
Opties
Opties
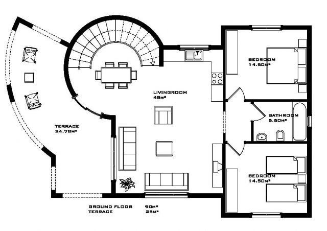
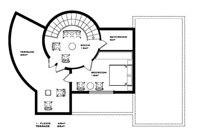
Kerngegevens
Adres:
07410 Alanya Avsallar Incekum
Prijs:
124.999 €
Woonoppervlak ca.:
135 m2.
Grondstuk:
500 m2.
Aantal kamers:
4
Verdere gegevens
Verdere gegevens
Woningtype:
Villa
Aantal etages:
2
Keuken:
Inbouwkeuken
Bad:
Douche, Ligbad, Raam
Aantal slaapkamers:
3
Aantal badkamers:
2
Terras:
2
Open Haard:
ja
Zwembad:
ja
Kelder:
volledig onderkelderd
Airco:
ja
Aantal parkeerplaatsen:
1 x Parkeerplaats buiten
Uitzicht:
Zeezicht
Kwaliteit van de uitrusting:
Luxe
Bouwjaar:
2023
Bouwfase:
Huis in planning (als project)
Beschikbaar vanaf:
2023
Vloerbedekking:
Laminaat
Toestand:
Huis in planning (als project)
Verwarming:
Vloer
Uitvoerige beschrijving
Uitvoerige beschrijving
Objectbeschrijving:
Eine preiswerte aber wunderschöne Villa in toller Qualität und Komplettausstattung , sogar der ca. 30qm grosse Pool ist im Preis enthalten, wir müssen nur noch Ihr Grundstück aussuchen und los geht es. Die Bauzeit wird 6 Monate nicht überschreiten. Wir müssen nur noch gemeinsam ein Grundstück aussuchen und los geht es, viel verschiedene Grundstücke sind vorhanden, das Grundstück ist nicht im Preis enthalten.
Indeling:
Braas Dach
Stahleingangstür
Innentüren Panel
Kälte-, Schall- und hitzebeständige Wände
PVC Fenster / doppelglasig mit elektrischen Aussenjalousien
Standardeinbauküche mit E- Geräten
Wohn- und Schlafzimmer als auch Kinderzimmer mit Laminatböden
Feinputz sowie Stuck mit integrierten Spotlampen
Küche, Bad und Diele mit Keramikfliesen
Bad mit Zwischendecke und integrierten Spotlampen
Unterbauspülkasten im Bad
Badeinbaumöbel
Duschkabine aus Kunststoff
Handtuchtrockner im Bad
Heisswasser Elektrisch
Alle Bäder haben Fussbodenheizung
Sat - TV anschluss
Telefonanschluss
Alle Zimmer haben Klimaanlagen
Treppen- und Balkongeländer aus Aluminium
Swimmingpool
Autoabstellplatz
Stahleingangstür
Innentüren Panel
Kälte-, Schall- und hitzebeständige Wände
PVC Fenster / doppelglasig mit elektrischen Aussenjalousien
Standardeinbauküche mit E- Geräten
Wohn- und Schlafzimmer als auch Kinderzimmer mit Laminatböden
Feinputz sowie Stuck mit integrierten Spotlampen
Küche, Bad und Diele mit Keramikfliesen
Bad mit Zwischendecke und integrierten Spotlampen
Unterbauspülkasten im Bad
Badeinbaumöbel
Duschkabine aus Kunststoff
Handtuchtrockner im Bad
Heisswasser Elektrisch
Alle Bäder haben Fussbodenheizung
Sat - TV anschluss
Telefonanschluss
Alle Zimmer haben Klimaanlagen
Treppen- und Balkongeländer aus Aluminium
Swimmingpool
Autoabstellplatz
Opmerking:
Die von uns gemachten Informationen beruhen auf Angaben des Verkäufers bzw. der Verkäuferin. Für die Richtigkeit und Vollständigkeit der Angaben kann keine Gewähr bzw. Haftung übernommen werden. Ein Zwischenverkauf und Irrtümer sind vorbehalten.
Algemene voorwaarden:
Wir weisen auf unsere Allgemeinen Geschäftsbedingungen hin. Durch weitere Inanspruchnahme unserer Leistungen erklären Sie die Kenntnis und Ihr Einverständnis.
AUF WUNSCH empfehlen wir Ihnen Finanzierungsexperten von namhaften Häusern wie der Deutschen Vermögensberatung und anderen.
Uw contactpersoon
Terug naar het overzicht




