Object 4 van 12
Volgende object
Vorige object
Terug naar het overzicht
code
Terug naar het overzicht
Volgende object
Vorige object
Terug naar het overzichtPhuket / Naka Bay:
Object-Nr.: PU_nakc
Snel contact
Opties
Opties
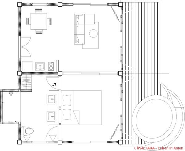
Kerngegevens
Adres:
83150 Phuket / Naka Bay
Prijs:
230.000 €
Woonoppervlak ca.:
60 m2.
Aantal kamers:
2
Verdere gegevens
Verdere gegevens
Aantal etages:
1
Op provisiebasis:
nee
Keuken:
Inbouwkeuken
Bad:
Douche, Raam
Aantal slaapkamers:
1
Aantal badkamers:
1
Terras:
1
Geschikt voor senioren:
ja
Tuin:
ja
Zwembad:
ja
Airco:
ja
Aantal parkeerplaatsen:
1
Gemeubileerd:
ja
Bouwjaar:
2018
Toestand:
Nieuw te betrekken
Uw contactpersoon
Terug naar het overzicht













