Objecto 213 de 278
Próximo objecto
Objecto anterior
Voltar à perspectiva geral
Voltar à perspectiva geral
Próximo objecto
Objecto anterior
Voltar à perspectiva geralTjele: Aalborgvej 206 8830 Tjele
Nr° do objecto: L84643
Contacto rápido
Opções
Opções
Dados principais
Endereço:
8830 Tjele
Preço:
4.950.000 DKK
Área residencial com cerca de:
306 m²
Imóvel:
485 m²
Outros dados
Outros dados
Sujeito a comissão:
não
Provisão:
None
Ano de construção:
1900
Descrição detalhada
Descrição detalhada
Descrição do objecto:
Her er virkelig en alsidig ejendom med en rigtig flot bolig. Ejendommen er beliggende med gode tilkørselsforhold, kun 10 min. kørsel fra Viborg.
Stort, velholdt stuehus om- og tilbygget i 2005. Huset er opført i gul tegl med eternittag. Der er ved inddragelse af 1. salen monteret en lille altan, der byder på en storslået udsigt.
En lækker bolig med pool og overdækkede terrasser - I stueplan indrettet med en flot baggang/hall der fungerer både som indgangsparti og det centrale fordelingsrum til husets forskellige afdelinger. Her er flere skabe, garderobe og et afskærmet rum til oliefyret (fungerer også som varme/tørreskab). Stueetagens opholdsafdeling er indrettet med stort køkken/alrum, hvorfra der er adgang til praktisk viktualierum, kontor/værelse og dobbelt fransk dør til stue med brændeovn. Fra køkken/alrum er der endvidere adgang til husets pool-afdeling, hvorfra der er direkte adgang til badeværelse/omklædning, samt terrasse-dør til flisebelagt, skærmet terrasse. Desuden er der toilet, walk-in påklædningsværelse og separat afdeling med badeværelse, værelse og stue/gildesal med åbent køkkenarrangement. Denne afdeling har desuden egen yderdør. 1. sal er nyere og indrettet med 3 gode værelser, pænt toilet og fantastisk opholds-/udsigtsstue.
Poolen måler 6,5 x 5,0 x 1,6 meter og indeholder ca. 45.000 liter vand. Opvarmning sker via solvarmeanlæg.
Husets have er velanlagt på husets 3 sider og kræver et minimum af vedligeholdelse. Her er plads til udfoldelse.
Der er central støvsuger i stuehuset.
HUS I BYEN KAN EVT. INDGÅ I HANDLEN.
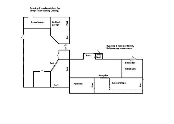
Velholdte erhvervsbygninger, der byder på rigtig mange muligheder. Blandt andet er der gode disponible rum adskilt af rulleporte, et velfungerende kølerum og lukket afsnit med læsserampe og port.
Erhvervsbygningerne kan evt. udlejes helt eller delvist.
Jordarealerne henligger med græs. De er velegnede til afgræsning for får, heste eller kreaturer. Og der vil kunne indrettes opstaldningsmulighed i driftsbygningerne.
Aalborgvej 206
8830 Tjele
Ejendomstype: Fritidslandbrug
Grundareal: 4,85 ha
Stuehus: 306 m2
Antal værelser: 10
Byggeår: 1900
Garage: 38 m2
Avlsbygninger: 1.716 m2
Energimærke: D
Kontantpris: 4.950.000
Udbetaling: 250.000
Finansiering
Brut 27.186
Net 22.487
agriteam.dk / aars Aps
Aars CityCenter
Søndergade 31, 1 m.
9600 Aars
Telefon: 98621396
Fax: 98625700
Stort, velholdt stuehus om- og tilbygget i 2005. Huset er opført i gul tegl med eternittag. Der er ved inddragelse af 1. salen monteret en lille altan, der byder på en storslået udsigt.
En lækker bolig med pool og overdækkede terrasser - I stueplan indrettet med en flot baggang/hall der fungerer både som indgangsparti og det centrale fordelingsrum til husets forskellige afdelinger. Her er flere skabe, garderobe og et afskærmet rum til oliefyret (fungerer også som varme/tørreskab). Stueetagens opholdsafdeling er indrettet med stort køkken/alrum, hvorfra der er adgang til praktisk viktualierum, kontor/værelse og dobbelt fransk dør til stue med brændeovn. Fra køkken/alrum er der endvidere adgang til husets pool-afdeling, hvorfra der er direkte adgang til badeværelse/omklædning, samt terrasse-dør til flisebelagt, skærmet terrasse. Desuden er der toilet, walk-in påklædningsværelse og separat afdeling med badeværelse, værelse og stue/gildesal med åbent køkkenarrangement. Denne afdeling har desuden egen yderdør. 1. sal er nyere og indrettet med 3 gode værelser, pænt toilet og fantastisk opholds-/udsigtsstue.
Poolen måler 6,5 x 5,0 x 1,6 meter og indeholder ca. 45.000 liter vand. Opvarmning sker via solvarmeanlæg.
Husets have er velanlagt på husets 3 sider og kræver et minimum af vedligeholdelse. Her er plads til udfoldelse.
Der er central støvsuger i stuehuset.
HUS I BYEN KAN EVT. INDGÅ I HANDLEN.
Velholdte erhvervsbygninger, der byder på rigtig mange muligheder. Blandt andet er der gode disponible rum adskilt af rulleporte, et velfungerende kølerum og lukket afsnit med læsserampe og port.
Erhvervsbygningerne kan evt. udlejes helt eller delvist.
Jordarealerne henligger med græs. De er velegnede til afgræsning for får, heste eller kreaturer. Og der vil kunne indrettes opstaldningsmulighed i driftsbygningerne.
Aalborgvej 206
8830 Tjele
Ejendomstype: Fritidslandbrug
Grundareal: 4,85 ha
Stuehus: 306 m2
Antal værelser: 10
Byggeår: 1900
Garage: 38 m2
Avlsbygninger: 1.716 m2
Energimærke: D
Kontantpris: 4.950.000
Udbetaling: 250.000
Finansiering
Brut 27.186
Net 22.487
agriteam.dk / aars Aps
Aars CityCenter
Søndergade 31, 1 m.
9600 Aars
Telefon: 98621396
Fax: 98625700
Localidade:
Her er virkelig en alsidig ejendom med en rigtig flot bolig. Ejendommen er beliggende med gode tilkørselsforhold, kun 10 min. kørsel fra Viborg.
Stort, velholdt stuehus om- og tilbygget i 2005. Huset er opført i gul tegl med eternittag. Der er ved inddragelse af 1. salen monteret en lille altan, der byder på en st...
Stort, velholdt stuehus om- og tilbygget i 2005. Huset er opført i gul tegl med eternittag. Der er ved inddragelse af 1. salen monteret en lille altan, der byder på en st...
Provisão:
Bei Abschluss eines Kaufvertrages wird eine Vermittlungs-/ Nachweisprovision fällig. Die Provision ist je nach Region unterschiedlich und muss vor Ort erfragt werden.
Observação:
Die von uns gemachten Informationen beruhen auf Angaben des Verkäufers bzw. der Verkäuferin. Für die Richtigkeit und Vollständigkeit der Angaben kann keine Gewähr bzw. Haftung übernommen werden. Ein Zwischenverkauf und Irrtümer sind vorbehalten.
Condições gerais:
Wir weisen auf unsere Allgemeinen Geschäftsbedingungen hin. Durch weitere Inanspruchnahme unserer Leistungen erklären Sie die Kenntnis und Ihr Einverständnis.
AUF WUNSCH empfehlen wir Ihnen Finanzierungsexperten von namhaften Häusern wie der Deutschen Vermögensberatung und anderen.
Voltar à perspectiva geral



















