Объект 33 от 278
Следующий объект
Предыдущий объект
Назад к просмотру
code
Назад к просмотру
Следующий объект
Предыдущий объект
Назад к просмотруØstbirk: Ydingvej 9 8752 Østbirk
№ объекта: 1680
Оперативная связь
Варианты
Варианты
Основные параметры
Адрес:
8752 Østbirk
Цена:
2.625.000 DKK
Жилая площадь:
154 кв.м
Земельный участок ок.:
232 кв.м
Другие данные
Другие данные
Подлежит начислению комиссионных:
Нет
Комиссионные:
None
Год постройки:
1976
Подробное описание
Подробное описание
Описание объекта:
Landligt idyl. I smukke og fredelige omgivelser ligger denne meget velholdte ejendom. Ejendommen er beliggende på landet og alligevel i Østbirkby, ejendom er beliggende - kun 15 km fra både Horsens og Skanderborg . En ejendom der skal opleves!
På denne landejendom er der plads til kreativitet og udendørsleg - ideel og alletiders for børnefamilien.
Ejendommens jordareal er på i alt 2,3 ha, som er beliggende lige uden for byskiltet til Østbirk - kun et vink fra selve Østbirk by. Samtidig med at man vælger at bo på landet har man her alle moderne faciliteter lige ved hånden, skole, daginstitutioner, idrætshal, og meget mere, børnene kan med lethed selv transportere sig til skole, legekammerater mv. via stisystemer. De daglige indkøb klares nemt og hurtigt da der er gode inkøbsmuligheder i form af forskellige butikker i byen.
Jordarealet fordeler sig med ca. 1 ha. byg, der er forpagtet ud til efter høsten,
Stuehuset er i 2 plan og fremtræder i gule mursten med beton tagsten. Ejendommens stuehus er fra 1976 og på 154 m² bolig.
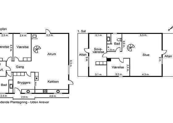
Indretning stueplan.: Dejligt stort lyst køkken/ alrum med brændeovn, fra køkken / alrummet er der udgang til skøn og solrig sydvestvendt terrasse med markise.Terrassen er delvis overdækket. Fra køkken / alrummet er der ligeledes trappe til 1. sal samt udgang til østvendt terrasse * Stor baggang / grovkøkken med klinkegulv god skabsplads med plads til vaskemaskine og skabs fryser * 2 værelser med tæpper og faste skabe * entre med vindfang * Stort badeværelset med karbad, bruseniche, skabsarrangement, klinkegulv med gulvvarme nyere vandsparende toilet .
Indretning 1. sal: Dejlig stor stue med stort vindusparti i gavlen der giver et skønt lysindfald, stuen har loft til kip, som giver en god rum fornemmelse, fra stuen er der udgang til svalegang mod syd. * Værelse / kontor * badeværelse med bruseniche, skabsarrangement samt klinkegulv * Stort soveværelse med udgang til svalegang. Soveværelset er opdelt i 2, adskilt af faste skabe, således der er skabt en afdeling til walk-in-closet * mindre kontor eller arbejdsrum.
Tilhørende ejendommen er der en dejlig ugeneret, opvokset og flot anlagt have hvilket fuldender helhedindtrykket af denne ejendom. Derudover er der drivhus, urtehave, graner m.m.
Ydingvej 9
8752 Østbirk
Ejendomstype: Nedlagte landbrug
Grundareal: 2,32 ha
Stuehus: 154 m2
Antal værelser: 6
Byggeår: 1976
Udhus: 445 m2
Avlsbygninger: 445 m2
Energimærke: F
Kontantpris: 2.625.000
Udbetaling: 135.000
Finansiering
Brut 15.583
Net 13.000
Alternativ finansiering
Brut 8.970
Net 7.508
Ejendomsmæglerfirmaet Riishøj
v/ Peder Riishøj
Storegade 4, Hatting
8700 Horsens
Telefon: 75653289
Fax: 75653288
På denne landejendom er der plads til kreativitet og udendørsleg - ideel og alletiders for børnefamilien.
Ejendommens jordareal er på i alt 2,3 ha, som er beliggende lige uden for byskiltet til Østbirk - kun et vink fra selve Østbirk by. Samtidig med at man vælger at bo på landet har man her alle moderne faciliteter lige ved hånden, skole, daginstitutioner, idrætshal, og meget mere, børnene kan med lethed selv transportere sig til skole, legekammerater mv. via stisystemer. De daglige indkøb klares nemt og hurtigt da der er gode inkøbsmuligheder i form af forskellige butikker i byen.
Jordarealet fordeler sig med ca. 1 ha. byg, der er forpagtet ud til efter høsten,
Stuehuset er i 2 plan og fremtræder i gule mursten med beton tagsten. Ejendommens stuehus er fra 1976 og på 154 m² bolig.
Indretning stueplan.: Dejligt stort lyst køkken/ alrum med brændeovn, fra køkken / alrummet er der udgang til skøn og solrig sydvestvendt terrasse med markise.Terrassen er delvis overdækket. Fra køkken / alrummet er der ligeledes trappe til 1. sal samt udgang til østvendt terrasse * Stor baggang / grovkøkken med klinkegulv god skabsplads med plads til vaskemaskine og skabs fryser * 2 værelser med tæpper og faste skabe * entre med vindfang * Stort badeværelset med karbad, bruseniche, skabsarrangement, klinkegulv med gulvvarme nyere vandsparende toilet .
Indretning 1. sal: Dejlig stor stue med stort vindusparti i gavlen der giver et skønt lysindfald, stuen har loft til kip, som giver en god rum fornemmelse, fra stuen er der udgang til svalegang mod syd. * Værelse / kontor * badeværelse med bruseniche, skabsarrangement samt klinkegulv * Stort soveværelse med udgang til svalegang. Soveværelset er opdelt i 2, adskilt af faste skabe, således der er skabt en afdeling til walk-in-closet * mindre kontor eller arbejdsrum.
Tilhørende ejendommen er der en dejlig ugeneret, opvokset og flot anlagt have hvilket fuldender helhedindtrykket af denne ejendom. Derudover er der drivhus, urtehave, graner m.m.
Ydingvej 9
8752 Østbirk
Ejendomstype: Nedlagte landbrug
Grundareal: 2,32 ha
Stuehus: 154 m2
Antal værelser: 6
Byggeår: 1976
Udhus: 445 m2
Avlsbygninger: 445 m2
Energimærke: F
Kontantpris: 2.625.000
Udbetaling: 135.000
Finansiering
Brut 15.583
Net 13.000
Alternativ finansiering
Brut 8.970
Net 7.508
Ejendomsmæglerfirmaet Riishøj
v/ Peder Riishøj
Storegade 4, Hatting
8700 Horsens
Telefon: 75653289
Fax: 75653288
Месторасположение дома / Земельный участок:
Landligt idyl. I smukke og fredelige omgivelser ligger denne meget velholdte ejendom. Ejendommen er beliggende på landet og alligevel i Østbirkby, ejendom er beliggende - kun 15 km fra både Horsens og Skanderborg . En ejendom der skal opleves!
På denne landejendom er der plads til kreativitet og udendørsleg - idee...
På denne landejendom er der plads til kreativitet og udendørsleg - idee...
Комиссионные:
Bei Abschluss eines Kaufvertrages wird eine Vermittlungs-/ Nachweisprovision fällig. Die Provision ist je nach Region unterschiedlich und muss vor Ort erfragt werden.
Примечание:
Die von uns gemachten Informationen beruhen auf Angaben des Verkäufers bzw. der Verkäuferin. Für die Richtigkeit und Vollständigkeit der Angaben kann keine Gewähr bzw. Haftung übernommen werden. Ein Zwischenverkauf und Irrtümer sind vorbehalten.
Общие условия заключения торговых сделок:
Wir weisen auf unsere Allgemeinen Geschäftsbedingungen hin. Durch weitere Inanspruchnahme unserer Leistungen erklären Sie die Kenntnis und Ihr Einverständnis.
AUF WUNSCH empfehlen wir Ihnen Finanzierungsexperten von namhaften Häusern wie der Deutschen Vermögensberatung und anderen.
Ваше контактное лицо
Назад к просмотру





















