Объект 69 от 278
Следующий объект
Предыдущий объект
Назад к просмотру
code
Назад к просмотру
Следующий объект
Предыдущий объект
Назад к просмотруRanders NØ: Murhusbakken 10, B 8930 Randers NØ
№ объекта: 9048
Оперативная связь
Варианты
Варианты
Основные параметры
Адрес:
8930 Randers NØ
Цена:
950.000 DKK
Земельный участок ок.:
2,57 кв.м
Другие данные
Другие данные
Подлежит начислению комиссионных:
Нет
Комиссионные:
None
Год постройки:
1850
Подробное описание
Подробное описание
Описание объекта:
Er beliggende I Støvring nord øst for Randers. Den ligger på en 2574 kvm stor grund der grænser op til kirken. Hvorfra der er udsigt over åbne marker skove og Randers fjord. Ligeledes ligger den tæt ved Randers fjord Golfklub.
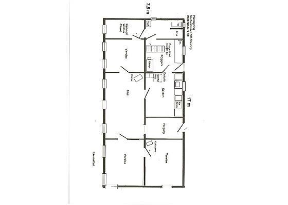
Boligen er opført i sten, pudsede og gule kalkede vægge, Stråtag og bondehus vinduer. Den er indrettet som følger: Bryggers, køkken med spiseplads, stue med brændeovn, soveværelse, 2 værelser og spisestue. Badeværelse med bruseniche og gulvvarme som er op elvarme. Ligeledes er der mindre forgang, som er afblændet og anvendes til fordelingsgang mv. Boligen er uudnyttet på 1.salen. En hyggelig og charmerende bolig omgivet af natur og idyl.
Landsbyen Støvring har i underkanten af 200 indbyggere og ligger ca. 10 km fra nordøst for Randers og 3 km fra Harridslev. Hvor der er indkøbsmuligheder, skole, sportsfaciliteter mv.
En charmerende ejendom som ligger idyllisk øst for Støvring kirke. Hvorfra der udsigt over Randers fjord marker mv. En ejendom beliggende på fredfyldt placering.
Murhusbakken 10, B
8930 Randers NØ
Ejendomstype: Villaer
Grundareal: 2.574 m2
Boligareal: 127 m2
Antal værelser: 4
Byggeår: 1850
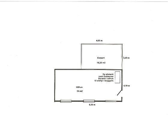
Garage: 32 m2
Udhus: 12 m2
Energimærke: G
Kontantpris: 950.000
Udbetaling: 50.000
Finansiering
Brut 6.958
Net 6.324
Alternativ finansiering
Brut 4.505
Net 4.213
Agriteam Randers
v/Ejd.mgl. Gustav Winther ApS
Haraldsvej 60, 1. sal.
8960 Randers
Telefon: 70267700
Fax: 70267706
Boligen er opført i sten, pudsede og gule kalkede vægge, Stråtag og bondehus vinduer. Den er indrettet som følger: Bryggers, køkken med spiseplads, stue med brændeovn, soveværelse, 2 værelser og spisestue. Badeværelse med bruseniche og gulvvarme som er op elvarme. Ligeledes er der mindre forgang, som er afblændet og anvendes til fordelingsgang mv. Boligen er uudnyttet på 1.salen. En hyggelig og charmerende bolig omgivet af natur og idyl.
Landsbyen Støvring har i underkanten af 200 indbyggere og ligger ca. 10 km fra nordøst for Randers og 3 km fra Harridslev. Hvor der er indkøbsmuligheder, skole, sportsfaciliteter mv.
En charmerende ejendom som ligger idyllisk øst for Støvring kirke. Hvorfra der udsigt over Randers fjord marker mv. En ejendom beliggende på fredfyldt placering.
Murhusbakken 10, B
8930 Randers NØ
Ejendomstype: Villaer
Grundareal: 2.574 m2
Boligareal: 127 m2
Antal værelser: 4
Byggeår: 1850
Garage: 32 m2
Udhus: 12 m2
Energimærke: G
Kontantpris: 950.000
Udbetaling: 50.000
Finansiering
Brut 6.958
Net 6.324
Alternativ finansiering
Brut 4.505
Net 4.213
Agriteam Randers
v/Ejd.mgl. Gustav Winther ApS
Haraldsvej 60, 1. sal.
8960 Randers
Telefon: 70267700
Fax: 70267706
Месторасположение дома / Земельный участок:
Er beliggende I Støvring nord øst for Randers. Den ligger på en 2574 kvm stor grund der grænser op til kirken. Hvorfra der er udsigt over åbne marker skove og Randers fjord. Ligeledes ligger den tæt ved Randers fjord Golfklub.
Boligen er opført i sten, pudsede og gule kalkede vægge, Stråtag og bondehus vinduer. De...
Boligen er opført i sten, pudsede og gule kalkede vægge, Stråtag og bondehus vinduer. De...
Комиссионные:
Bei Abschluss eines Kaufvertrages wird eine Vermittlungs-/ Nachweisprovision fällig. Die Provision ist je nach Region unterschiedlich und muss vor Ort erfragt werden.
Примечание:
Die von uns gemachten Informationen beruhen auf Angaben des Verkäufers bzw. der Verkäuferin. Für die Richtigkeit und Vollständigkeit der Angaben kann keine Gewähr bzw. Haftung übernommen werden. Ein Zwischenverkauf und Irrtümer sind vorbehalten.
Общие условия заключения торговых сделок:
Wir weisen auf unsere Allgemeinen Geschäftsbedingungen hin. Durch weitere Inanspruchnahme unserer Leistungen erklären Sie die Kenntnis und Ihr Einverständnis.
AUF WUNSCH empfehlen wir Ihnen Finanzierungsexperten von namhaften Häusern wie der Deutschen Vermögensberatung und anderen.
Ваше контактное лицо
Назад к просмотру



















