Objekt 2 från 14
nästa objekt
föregående objekt
tillbaka till översikten
code
tillbaka till översikten
nästa objekt
föregående objekt
tillbaka till översiktenBerlin: Modular Home "Fenia" – Compact, Modern & Multi-Purpose Living
objekt-nr.: DE-MFenia
Snabbkontakt
alternativ
alternativ
huvuddata
adress:
10117 Berlin
Område:
Bostadsområde
pris:
112.495 €
bostadsyta ca.:
45 kvm.
antal rum:
3
ytterligare data
ytterligare data
Hustyp:
övrigt
Antal våningar:
1
Utförlig beskrivning
Utförlig beskrivning
Objektsbeskrivning:
Modular Home "Fenia" – Compact, Modern & Multi-Purpose Living
Location: Germany
Project Name: House Type "Fenia"
Status: New Build / Ready to Order
Property Description:
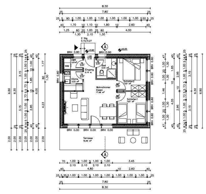
The "Fenia" modular house offers a smart and compact living concept with 44.44 m² of living space (plus optional 16.60 m² terrace) and a total footprint of 56.44 m². It is made up of two modules that are assembled on-site to create a complete home.
Ideal for use as a vacation home, guest house, garden residence, or a permanent minimalist living solution. Upon request, it can be delivered as a barrier-free (accessible) version. All interior fittings can be customized to your preferences.
Technical Details:
Living Space: 44.44 m²
Total Area: 56.44 m²
Optional Terrace: 16.60 m²
Modules: 2
Layout: Living/dining room, 2 bedrooms, bathroom, kitchen, utility room
Foundation: Elevated screw foundation system
Delivery: Assembled on site
Usability: Vacation house, guest suite, home office, or barrier-free living
Key Features:
✅ Open-plan living and dining area
✅ Two cozy bedrooms
✅ Fully equipped compact kitchen
✅ Modern bathroom and separate utility space
✅ Optional terrace for outdoor enjoyment
✅ Fast assembly & high energy efficiency
✅ Customizable materials and finishes
Contact:
📞 +49 151 475 33931
📧 info@gloim.com
🌐 www.gloim.com
Location: Germany
Project Name: House Type "Fenia"
Status: New Build / Ready to Order
Property Description:
The "Fenia" modular house offers a smart and compact living concept with 44.44 m² of living space (plus optional 16.60 m² terrace) and a total footprint of 56.44 m². It is made up of two modules that are assembled on-site to create a complete home.
Ideal for use as a vacation home, guest house, garden residence, or a permanent minimalist living solution. Upon request, it can be delivered as a barrier-free (accessible) version. All interior fittings can be customized to your preferences.
Technical Details:
Living Space: 44.44 m²
Total Area: 56.44 m²
Optional Terrace: 16.60 m²
Modules: 2
Layout: Living/dining room, 2 bedrooms, bathroom, kitchen, utility room
Foundation: Elevated screw foundation system
Delivery: Assembled on site
Usability: Vacation house, guest suite, home office, or barrier-free living
Key Features:
✅ Open-plan living and dining area
✅ Two cozy bedrooms
✅ Fully equipped compact kitchen
✅ Modern bathroom and separate utility space
✅ Optional terrace for outdoor enjoyment
✅ Fast assembly & high energy efficiency
✅ Customizable materials and finishes
Contact:
📞 +49 151 475 33931
📧 info@gloim.com
🌐 www.gloim.com
Din kontaktperson
tillbaka till översikten



















