Objekt 2 von 14
Nächstes Objekt
Vorheriges Objekt
Zurück zur Übersicht

Berlin: Modulhaus „Fenia“ – Kompakt, modern und vielseitig nutzbar

Objekt-Nr.: DE-MFenia
  • Modülhouse çatı
  • modülhouse teras
  • modulares Haus 14
  • modulares Haus 08
  • modulares Haus 09
  • modulares Haus 02
  • modulares Haus 01
  • modulares Haus 03
  • modulares Haus 04
  • modulares Haus 06
  • modulares Haus 05
  • modulares Haus 07
  • modulares Haus 15
  • modulares Haus 10
  • modulares Haus 11
  • modulares Haus 12
  • modulares Haus 13
  • modulares Haus 22
Modülhouse çatı
modülhouse teras
modulares Haus 14
modulares Haus 08
modulares Haus 09
modulares Haus 02
modulares Haus 01
modulares Haus 03
modulares Haus 04
modulares Haus 06
modulares Haus 05
modulares Haus 07
modulares Haus 15
modulares Haus 10
modulares Haus 11
modulares Haus 12
modulares Haus 13
modulares Haus 22
Schnellkontakt
Basisinformationen
Adresse:
10117 Berlin
Gebiet:
Wohngebiet
Preis:
112.495 €
Wohnfläche ca.:
45 m²
Zimmeranzahl:
3
Weitere Informationen
Weitere Informationen
Haustyp:
Sonstiges
Etagenanzahl:
1
Beschreibung
Beschreibung
Objektbeschreibung:
Modulhaus „Fenia“ – Kompakt, modern und vielseitig nutzbar
Standort: Deutschland
Projektname: Haustyp „Fenia“
Status: Neubau / sofort bestellbar

Objektbeschreibung:
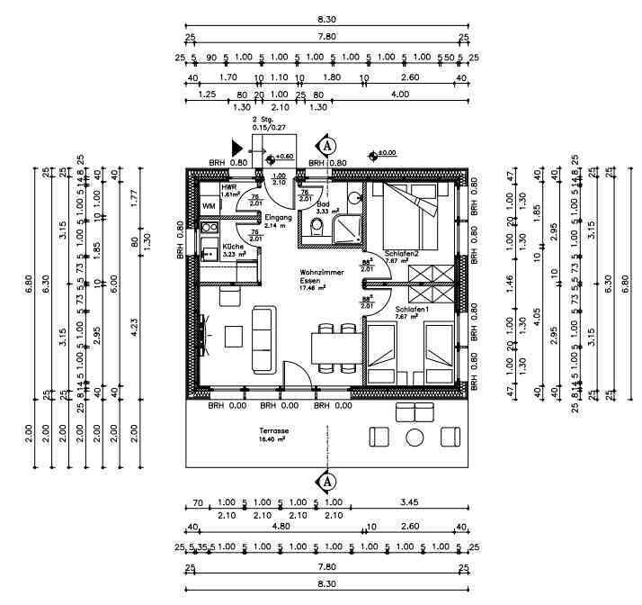
Der Haustyp „Fenia“ ist ein modernes Modulhaus mit einer Wohnfläche von 44,44 m² (zzgl. optionaler Terrasse mit 16,60 m²) und einer Grundfläche von insgesamt 56,44 m². Die Immobilie besteht aus zwei Modulen, die direkt auf der Baustelle zusammengefügt werden.

Das Haus eignet sich ideal als Wochenendhaus, Gartenhaus, Ferienimmobilie oder als dauerhafte Wohnlösung. Es kann auf Wunsch barrierefrei geliefert werden. Die Ausstattung wird individuell nach Ihren Vorstellungen bemustert.

Technische Daten:
Wohnfläche: 44,44 m²

Grundfläche: 56,44 m²

Terrasse (optional): 16,60 m²

Modulanzahl: 2

Zimmeraufteilung: Wohn-/Essbereich, 2 Schlafzimmer, Bad, Küche, Technikraum

Fundament: Schraubfundamente (erhöhte Bauweise)

Lieferung: Montage vor Ort

Nutzung: Ferienhaus, Gästewohnung, Homeoffice, barrierefreie Lösung

Highlights:
✅ Offener Wohn- und Essbereich
✅ Zwei komfortable Schlafzimmer
✅ Voll ausgestattete, platzsparende Küche
✅ Badezimmer mit Dusche & separater Hauswirtschaftsraum
✅ Optional: Terrasse für Outdoor-Erholung
✅ Kurze Aufbauzeit & hohe Energieeffizienz
✅ Materialien und Ausstattung individuell wählbar


Kontakt:
📞 +49 151 475 33931
📧 info@gloim.com
🌐 www.gloim.com
Anmerkung:
Weitere Informationen, wie einen Kaufratgeber , allgemeine Informationen der Region oder Informationen zur Kaufabwicklung können Sie von uns erhalten, vorzugsweise in einem Beratungsgespräch.
Die von uns gemachten Informationen beruhen auf Angaben des Verkäufers bzw. der Verkäuferin. Für die Richtigkeit und Vollständigkeit der Angaben kann keine Gewähr bzw. Haftung übernommen werden. Ein Zwischenverkauf und Irrtümer sind vorbehalten.
AGB:
Wir weisen auf unsere Allgemeinen Geschäftsbedingungen hin. Durch weitere Inanspruchnahme unserer Leistungen erklären Sie die Kenntnis und Ihr Einverständnis.
 
AUF WUNSCH empfehlen wir Ihnen Finanzierungsexperten !
Ihr Ansprechpartner
 


Gloim
Telefon: 0090 543 828 7362
Fax: Keine Termine vor Ort
code

Zurück zur Übersicht