Objekt 4 från 14
nästa objekt
föregående objekt
tillbaka till översikten
tillbaka till översikten
nästa objekt
föregående objekt
tillbaka till översiktenBerlin: Modular Home "SEEBI" – Comfortable, Well-Planned & Versatile
objekt-nr.: DE-MSeebi
Snabbkontakt
alternativ
alternativ
huvuddata
adress:
10117 Berlin
Område:
Bostadsområde
pris:
pris efter förfrågan
bostadsyta ca.:
45 kvm.
antal rum:
2
ytterligare data
ytterligare data
Hustyp:
övrigt
Antal sovrum:
1
Utförlig beskrivning
Utförlig beskrivning
Objektsbeskrivning:
Modular Home "SEEBI" – Comfortable, Well-Planned & Versatile
Location: Germany
Project Name: SEEBI House Type
Status: New / Ready to Order
General Information:
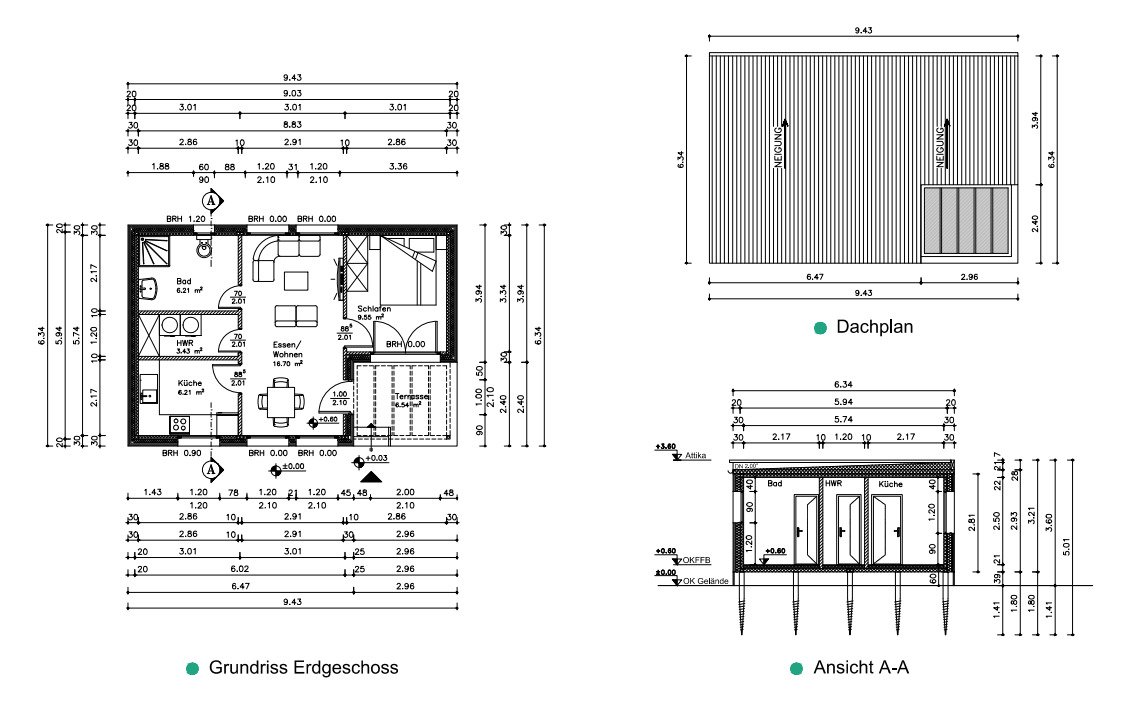
The SEEBI model offers 45.37 m² of interior living space including a covered terrace. The total gross area is 60.16 m² (billable area: 56.89 m²). The house consists of 3 modules that are assembled on-site to create a complete and practical home.
Perfect as a holiday retreat, guest house or additional dwelling, SEEBI combines functionality with aesthetic appeal. An accessible version is available upon request. All interior materials and finishes can be fully customized.
Technical Specifications:
Living Area: 45.37 m² (including covered terrace)
Total Area: 60.16 m² (billable 56.89 m²)
Modules: 3
Layout:
Living & Dining Room: 16.70 m²
Kitchen: 6.21 m²
Bedroom: 9.55 m²
Bathroom: 6.21 m²
Utility Room (HWR): 3.43 m²
Covered Terrace: 3.84 m²
Foundation: Screw-pile system
Assembly: On-site modular construction
Key Features:
✅ Spacious living and dining area
✅ Separate full kitchen
✅ Large bedroom
✅ Utility/laundry room
✅ Covered terrace
✅ Flexible solution for extra living space
✅ Quick delivery & customizable interiors
Contact:
📞 +49 151 475 33931
📧 info@gloim.com
🌐 www.gloim.com
Location: Germany
Project Name: SEEBI House Type
Status: New / Ready to Order
General Information:
The SEEBI model offers 45.37 m² of interior living space including a covered terrace. The total gross area is 60.16 m² (billable area: 56.89 m²). The house consists of 3 modules that are assembled on-site to create a complete and practical home.
Perfect as a holiday retreat, guest house or additional dwelling, SEEBI combines functionality with aesthetic appeal. An accessible version is available upon request. All interior materials and finishes can be fully customized.
Technical Specifications:
Living Area: 45.37 m² (including covered terrace)
Total Area: 60.16 m² (billable 56.89 m²)
Modules: 3
Layout:
Living & Dining Room: 16.70 m²
Kitchen: 6.21 m²
Bedroom: 9.55 m²
Bathroom: 6.21 m²
Utility Room (HWR): 3.43 m²
Covered Terrace: 3.84 m²
Foundation: Screw-pile system
Assembly: On-site modular construction
Key Features:
✅ Spacious living and dining area
✅ Separate full kitchen
✅ Large bedroom
✅ Utility/laundry room
✅ Covered terrace
✅ Flexible solution for extra living space
✅ Quick delivery & customizable interiors
Contact:
📞 +49 151 475 33931
📧 info@gloim.com
🌐 www.gloim.com
Din kontaktperson
tillbaka till översikten




