Objekt 10 från 12
nästa objekt
föregående objekt
tillbaka till översikten
code
tillbaka till översikten
nästa objekt
föregående objekt
tillbaka till översiktenPhuket / Naka Bay:
objekt-nr.: PU_nakc
Snabbkontakt
alternativ
alternativ
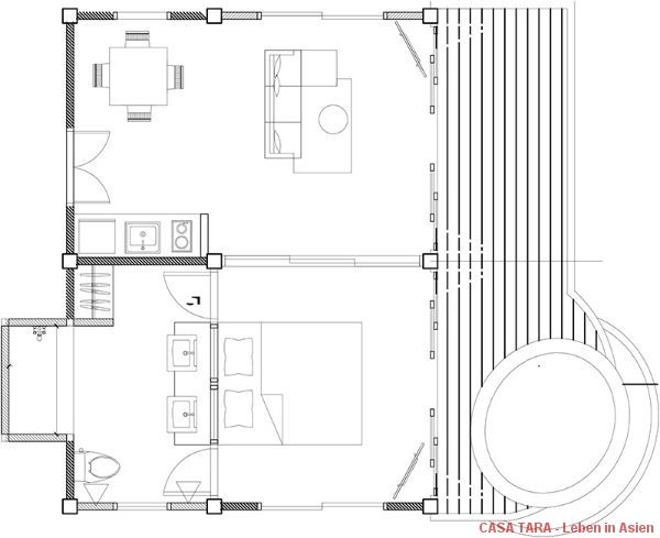
huvuddata
adress:
83150 Phuket / Naka Bay
pris:
230.000 €
bostadsyta ca.:
60 kvm.
antal rum:
2
ytterligare data
ytterligare data
Antal våningar:
1
Provisionsbaserad:
nej
Kök:
Köksdel
Badrum:
Dusch, Fönster
Antal sovrum:
1
Antal badrum:
1
terrass:
1
Lämplig för seniorer:
ja
Trädgård:
ja
pool:
ja
klimatanläggning:
ja
Antal parkeringsplatser:
1
Möblering:
ja
byggår:
2018
tillstånd:
Första inflyttning
Din kontaktperson
tillbaka till översikten













