Objekt 10 von 12
Nächstes Objekt
Vorheriges Objekt
Zurück zur Übersicht
code
Zurück zur Übersicht
Nächstes Objekt
Vorheriges Objekt
Zurück zur ÜbersichtPhuket / Naka Bay: Atemberaubende Sea View Cottages am Phuket in Nak Bay, Nähe Patong Beach
Objekt-Nr.: PU_nakc
Schnellkontakt
Optionen
Optionen
Basisinformationen
Adresse:
83150 Phuket / Naka Bay
Preis:
230.000 €
Wohnfläche ca.:
60 m²
Zimmeranzahl:
2
Weitere Informationen
Weitere Informationen
Etagenanzahl:
1
Provisionspflichtig:
nein
Küche:
Einbauküche
Bad:
Dusche, Fenster
Anzahl Schlafzimmer:
1
Anzahl Badezimmer:
1
Terrasse:
1
Seniorengerecht:
ja
Garten:
ja
Pool:
ja
Klimaanlage:
ja
Anzahl der Parkflächen:
1
Möbliert:
ja
Baujahr:
2018
Zustand:
Erstbezug
Beschreibung
Beschreibung
Objektbeschreibung:
Verkauf ohne Maklergebühr direkt ab Bauträger !
Im Frühjahr 2017 startete der Entwickler der Patong Bay Sea View Cottages als zweite Phase seines Patong Bay Hill Sea View Eigentumswohnungsprojekts. Dieses Projekt war so erfolgreich, dass die überwiegende Anzahl der 150 Bungalows in weniger als sechs Monaten ausverkauft war. Deshalb beginnt nun die Entwicklung der Cottages mit Naka Bay Sea View.
Versteckt in der Tropenlandschaft der Nakalay Bay und umgeben von üppiger Vegetation und überragenden Palmen, ist Naka Sea View Condominium eine moderne, luxuriöse Wohnanlage in den Hügeln von Kamala. Nur einen Steinwurf vom atemberaubenden, ruhigen Strand von Naka entfernt, bietet das Naka Sea View Condominium einen atemberaubenden Meerblick. Der nahegelegene Strand ist einer der schönsten Strände Phukets, mit türkisblauem Wasser und weißem Sand. Emailen Sie uns zu weiteren Details der Apartments.
Die hier vorgestellte zweite Phase des Projekts besteht aus abgeschlossenen Cottages, die sich alle an den Hängen des Hügels befinden, so dass die Eigentümer und Gäste von jeder Einheit einen unvergleichbaren Blick auf das Meer haben.
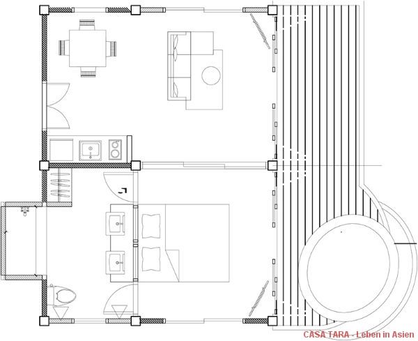
Diese in einem einzigartigen, geschwungenen Stil gestalteten Cottages sind alle Ein-Schlafzimmer-Einheiten mit 42 m2 Innenfläche und einer 18 m2 großen Terrasse, die jeweils mit einem privaten Whirlpool ausgestattet sind, so dass Eigentümer und Gäste baden können, während sie den Sonnenuntergang über dem Ozean beobachten.
Alle Ferienhäuser werden komplett schlüsselfertig geliefert - bis hin zur Einrichtung und zum Besteck - und alle Ausstattungsgegenstände sind von höchster Qualität, um sicherzustellen, dass sie der Fünf-Sterne-Natur des Resorts entsprechen.
Zu den Einrichtungen, die den Gästen in Naka Bay Sea View angeboten werden, gehören ein voll funktionsfähiges Clubhaus, ein hochmodernes Fitnesscenter, ein gut ausgestatter Gemeinschaftsbereich mit Swimmingpool, ein Wellness-Zentrum und Spa sowie ein komfortables Restaurant mit thailändischer und westlicher Küche.
Da Naka Bay Sea View als Fünf-Sterne-Hotel fungiert, ist es auch besonders für Investoren interessant, die eine Mietrendite anstreben. Für Investoren bietet das Projekt eine garantierte Netto Mietrendite von 7% p. a. für einen Zeitraum von 15 Jahren. Es fallen keine Verwaltungsgebühren mehr an - im Gegensatz zu den meisten Projekten, die Mietgarantien anbieten.
Der Entwickler bietet auch ein Garantiertes Rückkaufprogramm nach zehn Jahren an.
Investoren haben außerdem die Möglichkeit, ihre eigenen Wohnungen bis zu vier Wochen pro Jahr kostenlos zu nutzen - davon können zwei Wochen während der Hochsaison in Phuket im Winter genommen werden.
Im Frühjahr 2017 startete der Entwickler der Patong Bay Sea View Cottages als zweite Phase seines Patong Bay Hill Sea View Eigentumswohnungsprojekts. Dieses Projekt war so erfolgreich, dass die überwiegende Anzahl der 150 Bungalows in weniger als sechs Monaten ausverkauft war. Deshalb beginnt nun die Entwicklung der Cottages mit Naka Bay Sea View.
Versteckt in der Tropenlandschaft der Nakalay Bay und umgeben von üppiger Vegetation und überragenden Palmen, ist Naka Sea View Condominium eine moderne, luxuriöse Wohnanlage in den Hügeln von Kamala. Nur einen Steinwurf vom atemberaubenden, ruhigen Strand von Naka entfernt, bietet das Naka Sea View Condominium einen atemberaubenden Meerblick. Der nahegelegene Strand ist einer der schönsten Strände Phukets, mit türkisblauem Wasser und weißem Sand. Emailen Sie uns zu weiteren Details der Apartments.
Die hier vorgestellte zweite Phase des Projekts besteht aus abgeschlossenen Cottages, die sich alle an den Hängen des Hügels befinden, so dass die Eigentümer und Gäste von jeder Einheit einen unvergleichbaren Blick auf das Meer haben.
Diese in einem einzigartigen, geschwungenen Stil gestalteten Cottages sind alle Ein-Schlafzimmer-Einheiten mit 42 m2 Innenfläche und einer 18 m2 großen Terrasse, die jeweils mit einem privaten Whirlpool ausgestattet sind, so dass Eigentümer und Gäste baden können, während sie den Sonnenuntergang über dem Ozean beobachten.
Alle Ferienhäuser werden komplett schlüsselfertig geliefert - bis hin zur Einrichtung und zum Besteck - und alle Ausstattungsgegenstände sind von höchster Qualität, um sicherzustellen, dass sie der Fünf-Sterne-Natur des Resorts entsprechen.
Zu den Einrichtungen, die den Gästen in Naka Bay Sea View angeboten werden, gehören ein voll funktionsfähiges Clubhaus, ein hochmodernes Fitnesscenter, ein gut ausgestatter Gemeinschaftsbereich mit Swimmingpool, ein Wellness-Zentrum und Spa sowie ein komfortables Restaurant mit thailändischer und westlicher Küche.
Da Naka Bay Sea View als Fünf-Sterne-Hotel fungiert, ist es auch besonders für Investoren interessant, die eine Mietrendite anstreben. Für Investoren bietet das Projekt eine garantierte Netto Mietrendite von 7% p. a. für einen Zeitraum von 15 Jahren. Es fallen keine Verwaltungsgebühren mehr an - im Gegensatz zu den meisten Projekten, die Mietgarantien anbieten.
Der Entwickler bietet auch ein Garantiertes Rückkaufprogramm nach zehn Jahren an.
Investoren haben außerdem die Möglichkeit, ihre eigenen Wohnungen bis zu vier Wochen pro Jahr kostenlos zu nutzen - davon können zwei Wochen während der Hochsaison in Phuket im Winter genommen werden.
Ausstattung:
Kabel Sat TV • Wasch Trockenraum •
MIET-GARANTIEPROGRAMMAppartement mit Meerblick, komplett möbliert mit Küche und Geräten.Seeblick Bungalows mit 60 qmKeine Wartungsgebühr, keine Nebenkosten für die gesamte Mietgarantiezeit. Es muss kein Rücklagen-Fonds bezahlt werden. Die Zulassungssteuern teilen sich 50%-50% zwischen Käufer und Verkäufer.Mietzinsgarantiebedingungen:Sonderaktion 7% NETTO (nach WHT) Mietzinsgarantie (keine monatliche Gebühr, kein Strom, keine Wartung, keine Unterhaltskosten...) für die ersten 15 Jahre. Die Mietzinsgarantie wird am Ende des Jahres bezahlt. Nach 15 Jahren Möglichkeit der Neuverhandlung einer neuen Mietzinsgarantiefrist.Rückkaufoption:Option zum Rückverkauf an den Entwickler nach 10 Jahren.Zahlungsbedingungen:200.000 Baht Reservierungsanzahlung40% bei Unterzeichnung des Kaufvertrages innerhalb von 30 Tagen nach Unterzeichnung des Reservierungsvertrages.25% bei Fertigstellung der Fundamente.20% nach Abschluss der Lock-up-Phase.15% (abzüglich Kaution) bei Schlüsselübergabe.Vorteile für Besitzer:Möglichkeit für den Eigentümer, die Wohnung 4 Wochen in der Nebensaison oder 2 Wochen in der Hauptsaison und 2 Wochen in der Nebensaison zu benutzen, frei von den Kosten für Strom, Wasser und monatliche Gebühr. Der Eigentümer kann die Nutzungsrechte auch während der Hochsaison erhalten, wenn er eine Entschädigung in Höhe von 50% der offiziellen Miete erhält.Täglicher kostenloser Shuttle-Service zum Strand ist im Preis inbegriffen. Ermäßigung bei Buchung von Touren und Residence Restaurant und Spa Preisen werden angeboten.AUSSTATTUNG24/7 SicherheitKlimaanlage - KlimaanlageNähe zum StrandFitness-ZentrumVoll möbliertGärten - GärtenWhirlpoolParken - ParkplatzEmpfangRestaurant - RestaurantMeerblickShuttle-BusSpa ZentrumSchwimmbad - SchwimmbadMEHR DETAILSEigentum: Geschütztes Erbpachtrecht mit 7% Nettogarantieverzinsung für 15 Jahre.Immobilien Typ: Seeblick CottagesParzelle Größe: 48.000 m2Bebaute Fläche: 16.800 m2Fertigstellung: 2021Aufteilung: 60 m2, 1 SchlafzimmerStil: Tropisch/zeitgenössischKüche: Offene KücheWohnzimmer: Offener Wohn- und EssbereichSchwimmbad: Privater Balkon mit MeerblickBalkon: privatGarten: Landschaft Garten - Aussicht: Meer/BergEntfernung vom Strand: 200 Meter
MIET-GARANTIEPROGRAMMAppartement mit Meerblick, komplett möbliert mit Küche und Geräten.Seeblick Bungalows mit 60 qmKeine Wartungsgebühr, keine Nebenkosten für die gesamte Mietgarantiezeit. Es muss kein Rücklagen-Fonds bezahlt werden. Die Zulassungssteuern teilen sich 50%-50% zwischen Käufer und Verkäufer.Mietzinsgarantiebedingungen:Sonderaktion 7% NETTO (nach WHT) Mietzinsgarantie (keine monatliche Gebühr, kein Strom, keine Wartung, keine Unterhaltskosten...) für die ersten 15 Jahre. Die Mietzinsgarantie wird am Ende des Jahres bezahlt. Nach 15 Jahren Möglichkeit der Neuverhandlung einer neuen Mietzinsgarantiefrist.Rückkaufoption:Option zum Rückverkauf an den Entwickler nach 10 Jahren.Zahlungsbedingungen:200.000 Baht Reservierungsanzahlung40% bei Unterzeichnung des Kaufvertrages innerhalb von 30 Tagen nach Unterzeichnung des Reservierungsvertrages.25% bei Fertigstellung der Fundamente.20% nach Abschluss der Lock-up-Phase.15% (abzüglich Kaution) bei Schlüsselübergabe.Vorteile für Besitzer:Möglichkeit für den Eigentümer, die Wohnung 4 Wochen in der Nebensaison oder 2 Wochen in der Hauptsaison und 2 Wochen in der Nebensaison zu benutzen, frei von den Kosten für Strom, Wasser und monatliche Gebühr. Der Eigentümer kann die Nutzungsrechte auch während der Hochsaison erhalten, wenn er eine Entschädigung in Höhe von 50% der offiziellen Miete erhält.Täglicher kostenloser Shuttle-Service zum Strand ist im Preis inbegriffen. Ermäßigung bei Buchung von Touren und Residence Restaurant und Spa Preisen werden angeboten.AUSSTATTUNG24/7 SicherheitKlimaanlage - KlimaanlageNähe zum StrandFitness-ZentrumVoll möbliertGärten - GärtenWhirlpoolParken - ParkplatzEmpfangRestaurant - RestaurantMeerblickShuttle-BusSpa ZentrumSchwimmbad - SchwimmbadMEHR DETAILSEigentum: Geschütztes Erbpachtrecht mit 7% Nettogarantieverzinsung für 15 Jahre.Immobilien Typ: Seeblick CottagesParzelle Größe: 48.000 m2Bebaute Fläche: 16.800 m2Fertigstellung: 2021Aufteilung: 60 m2, 1 SchlafzimmerStil: Tropisch/zeitgenössischKüche: Offene KücheWohnzimmer: Offener Wohn- und EssbereichSchwimmbad: Privater Balkon mit MeerblickBalkon: privatGarten: Landschaft Garten - Aussicht: Meer/BergEntfernung vom Strand: 200 Meter
Anmerkung:
Die von uns gemachten Informationen beruhen auf Angaben des Verkäufers bzw. der Verkäuferin. Für die Richtigkeit und Vollständigkeit der Angaben kann keine Gewähr bzw. Haftung übernommen werden. Ein Zwischenverkauf und Irrtümer sind vorbehalten.
AGB:
Wir weisen auf unsere Allgemeinen Geschäftsbedingungen hin. Durch weitere Inanspruchnahme unserer Leistungen erklären Sie die Kenntnis und Ihr Einverständnis.
AUF WUNSCH empfehlen wir Ihnen Finanzierungsexperten von namhaften Häusern wie der Deutschen Vermögensberatung und anderen.
Ihr Ansprechpartner
Zurück zur Übersicht













