3/8 sonuç
Sonraki emlak
Bir önceki ürün
Geri dön
code
Geri dön
Sonraki emlak
Bir önceki ürün
Geri dönAlanya Avsallar Incekum: 5 Yatak odalý geniþ anahtar teslim bitmiþ süper deniz manzaralý lüx Villa, lüx donaným ve Havuz dahil.
Emlak No.: tur-14037
Hızlı iletişim
Seçenekler
Seçenekler
Ana bilgiler
Adres:
07410 Alanya Avsallar Incekum
Fiyat:
224.999 €
Yaklaşık Oturma Alanı:
297 m2
Arsa Büyüklüğü:
500 m2
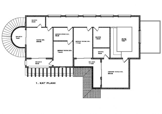
Oda sayısı:
6
Ek bilgiler
Ek bilgiler
Ev tipi:
Villa
Kat Sayisi:
2
Mutfak:
Mutfak Mobilyası
Banyo:
Duş, Küvet, Pencere
Yatak Odası Sayısı:
5
Banyo Sayısı:
5
Teras:
3
Şömine:
evet
Havuz:
evet
kiler:
Tam bodrumlu
Klima:
evet
Otopark sayisi:
1 x Dis kurulum yeri
Manzara:
Deniz Manzara
Yapi kalitesi:
Lüks
Yapım Yılı:
2020
Yapı aşaması:
Ev yapim asamasinda (projelendirildi)
Zemin Kaplama:
Lamine Parke
Durum:
Ev yapim asamasinda (projelendirildi)
Kalörifer:
Zemin
Detayli Tanitim
Detayli Tanitim
ürün Tanitim:
Komple l
Ticari ko
İlgili kişi
Geri dön






