11/15 sonuç
Sonraki emlak
Bir önceki ürün
Geri dön
code
Geri dön
Sonraki emlak
Bir önceki ürün
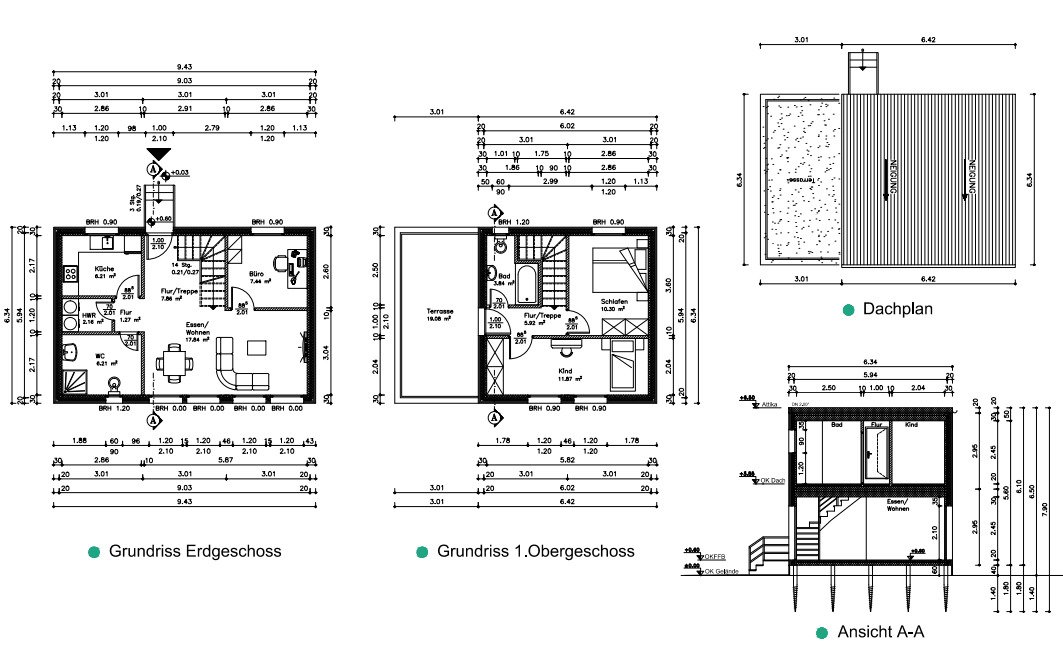
Geri dönBerlin: MILLA Modüler Ev – Fonksiyonel, İki Katlı ve Teraslı Yaşam Konsepti
Emlak No.: DE-MMila
Hızlı iletişim
Seçenekler
Seçenekler
Ana bilgiler
Adres:
10117 Berlin
Bölge:
Yerlesim Bölgesi
Fiyat:
Belirtilmemiş
Yaklaşık Oturma Alanı:
88 m2
Oda sayısı:
4
Ek bilgiler
Ek bilgiler
Ev tipi:
Diger
Yatak Odası Sayısı:
2
Detayli Tanitim
Detayli Tanitim
ürün Tanitim:
MILLA Modüler Ev – Fonksiyonel, İki Katlı ve Teraslı Yaşam Konsepti
MILLA modeli, toplam 87,28 m² yaşam alanı ve 107,60 m² brüt alan (dâhil edilebilir çatı terası ile birlikte) sunan modern ve iki katlı bir modüler konuttur. 5 ayrı modülden oluşan bu yapı, sahada montajlanarak kısa sürede kullanıma hazır hale gelir.
Zemin Kat: Açık plan mutfak, salon, ofis, teknik oda (HWR), WC, antre ve merdiven alanı
1. Kat: 2 yatak odası (çocuk ve ebeveyn), banyo, çatı terası ve sirkülasyon alanı
Teras: 19,05 m² çatı terası dâhildir
Toplam Brüt Alan: 2 x 60,16 m² = 120,32 m² (hesaplamaya dâhil edilebilir alan: 107,60 m²)
Avantajlar:
✅ İki katlı modern modüler mimari
✅ Geniş yaşam alanları ve çatı terası
✅ Hızlı kurulum ve sürdürülebilir yapı sistemi
✅ Kişiye özel iç mekan tasarımı
İletişim:
📧 info@gloim.com
📞 +49 151 475 33931
🌐 www.gloim.com
MILLA modeli, toplam 87,28 m² yaşam alanı ve 107,60 m² brüt alan (dâhil edilebilir çatı terası ile birlikte) sunan modern ve iki katlı bir modüler konuttur. 5 ayrı modülden oluşan bu yapı, sahada montajlanarak kısa sürede kullanıma hazır hale gelir.
Zemin Kat: Açık plan mutfak, salon, ofis, teknik oda (HWR), WC, antre ve merdiven alanı
1. Kat: 2 yatak odası (çocuk ve ebeveyn), banyo, çatı terası ve sirkülasyon alanı
Teras: 19,05 m² çatı terası dâhildir
Toplam Brüt Alan: 2 x 60,16 m² = 120,32 m² (hesaplamaya dâhil edilebilir alan: 107,60 m²)
Avantajlar:
✅ İki katlı modern modüler mimari
✅ Geniş yaşam alanları ve çatı terası
✅ Hızlı kurulum ve sürdürülebilir yapı sistemi
✅ Kişiye özel iç mekan tasarımı
İletişim:
📧 info@gloim.com
📞 +49 151 475 33931
🌐 www.gloim.com
Not:
Tüm bilgiler Satıcılar tarafından verildiği için eksik veya yanlış bilgiler Firmamızı bağlamaz. Eksik bilgi veya Objenin satılmış olması olağandır.
Ticari koşullarımızı okuyup anladığınızı beyan ederek,hizmet başvurunuzda bunu kabullenmiş sayarız.
İstek üzereine size obje Finansı hakkında bilgi ve yönlendirmede yardımcı oluruz.
İstek üzereine size obje Finansı hakkında bilgi ve yönlendirmede yardımcı oluruz.
İlgili kişi
Geri dön




