Objekt 8 fra 15
Nfste objekt
Forrige objekt
Tilbage til oversigt

Berlin: BIBI Modular Home – Compact, Modern & Functional Living

objektnr.: DE-MBibi
  • BIBI Modulhaus
  • BIBI Modulhaus
  • BIBI Modulhaus
BIBI Modulhaus
BIBI Modulhaus
BIBI Modulhaus
Hurtig kontakt
Nxgletal
Adresse:
10117 Berlin
Område:
Beboelsesområde
Pris:
Pris ved forespxrgsel
Boligareal ca.:
43 m2
Antal vfrelser:
2
Andre data
Andre data
Hustype:
Andet
Antal sovevfrelser:
1
Antal badevfrelser:
1
Udfxrlig beskrivelse
Udfxrlig beskrivelse
Objektbeskrivelse:
BIBI Modular Home – Compact, Modern & Functional Living
Location: Germany
Model Name: BIBI
Status: New – Ready to Order

Overview
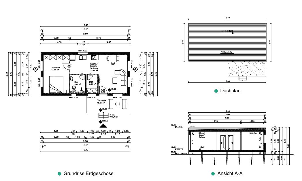
The BIBI model offers 42.44 m² of living space and is built from two modular units assembled directly on-site. An optional 10.20 m² terrace can be added to extend the outdoor living area.

Designed for efficiency and style, BIBI is ideal for individuals, couples, or investors seeking a compact yet high-quality housing solution. Interior finishes are fully customizable.

Technical Specifications
Living Area: 42.44 m²

Gross Area: 53.04 m²

Modules: 2

Terrace: 10.20 m² (optional)

Foundation: Screw pile system

Installation Time: Fast on-site assembly

Key Benefits
✅ Compact and stylish living solution
✅ Optional terrace for added comfort
✅ Custom interior design
✅ Rapid deployment and mobility
✅ Great for investment or personal use



📞 +49 151 475 33931
📧 info@gloim.com
🌐 www.gloim.com

Din kontaktperson
 


Gloim
Telefon: 0090 543 828 7362
Fax: Keine Termine vor Ort
code

Tilbage til oversigt