Objekt 8 von 15
Nächstes Objekt
Vorheriges Objekt
Zurück zur Übersicht
Zurück zur Übersicht
Nächstes Objekt
Vorheriges Objekt
Zurück zur ÜbersichtBerlin: BIBI Modulhaus – Kompakt, Modern und Funktional
Objekt-Nr.: DE-MBibi
Schnellkontakt
Optionen
Optionen
Basisinformationen
Adresse:
10117 Berlin
Gebiet:
Wohngebiet
Preis:
Preis auf Anfrage
Wohnfläche ca.:
43 m²
Zimmeranzahl:
2
Weitere Informationen
Weitere Informationen
Haustyp:
Sonstiges
Anzahl Schlafzimmer:
1
Anzahl Badezimmer:
1
Beschreibung
Beschreibung
Objektbeschreibung:
BIBI Modulhaus – Kompakt, Modern und Funktional
Standort: Deutschland
Modell: BIBI
Status: Neubau – Lieferbereit
Übersicht
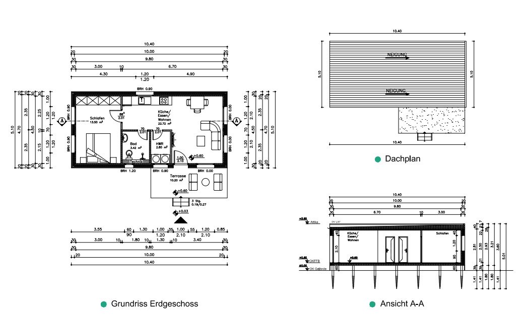
Das Modell BIBI bietet 42,44 m² Wohnfläche und besteht aus zwei Modulen, die vor Ort zu einem modernen Zuhause zusammengefügt werden. Eine optionale Terrasse von 10,20 m² erweitert den Lebensraum nach draußen.
Dank seines durchdachten Designs eignet sich das Modulhaus ideal für Singles, Paare oder als Mietobjekt. Materialien und Ausstattung können individuell gewählt werden.
Technische Daten
Wohnfläche: 42,44 m²
Gesamtfläche (brutto): 53,04 m²
Modulanzahl: 2
Terrasse: 10,20 m² (optional)
Fundament: Schraubfundamente
Montagezeit: Kurze Bauzeit durch Modulbauweise
Vorteile
✅ Zeitgemäßer und effizienter Wohnraum
✅ Terrasse für mehr Lebensqualität
✅ Flexible Ausstattung nach Wunsch
✅ Schneller Aufbau – mobil und erweiterbar
✅ Perfekt für Investitionen oder Eigenbedarf
📞 +49 151 475 33931
📧 info@gloim.com
🌐 www.gloim.com
Standort: Deutschland
Modell: BIBI
Status: Neubau – Lieferbereit
Übersicht
Das Modell BIBI bietet 42,44 m² Wohnfläche und besteht aus zwei Modulen, die vor Ort zu einem modernen Zuhause zusammengefügt werden. Eine optionale Terrasse von 10,20 m² erweitert den Lebensraum nach draußen.
Dank seines durchdachten Designs eignet sich das Modulhaus ideal für Singles, Paare oder als Mietobjekt. Materialien und Ausstattung können individuell gewählt werden.
Technische Daten
Wohnfläche: 42,44 m²
Gesamtfläche (brutto): 53,04 m²
Modulanzahl: 2
Terrasse: 10,20 m² (optional)
Fundament: Schraubfundamente
Montagezeit: Kurze Bauzeit durch Modulbauweise
Vorteile
✅ Zeitgemäßer und effizienter Wohnraum
✅ Terrasse für mehr Lebensqualität
✅ Flexible Ausstattung nach Wunsch
✅ Schneller Aufbau – mobil und erweiterbar
✅ Perfekt für Investitionen oder Eigenbedarf
📞 +49 151 475 33931
📧 info@gloim.com
🌐 www.gloim.com
Anmerkung:
Weitere Informationen, wie einen Kaufratgeber , allgemeine Informationen der Region oder Informationen zur Kaufabwicklung können Sie von uns erhalten, vorzugsweise in einem Beratungsgespräch.
Die von uns gemachten Informationen beruhen auf Angaben des Verkäufers bzw. der Verkäuferin. Für die Richtigkeit und Vollständigkeit der Angaben kann keine Gewähr bzw. Haftung übernommen werden. Ein Zwischenverkauf und Irrtümer sind vorbehalten.
Die von uns gemachten Informationen beruhen auf Angaben des Verkäufers bzw. der Verkäuferin. Für die Richtigkeit und Vollständigkeit der Angaben kann keine Gewähr bzw. Haftung übernommen werden. Ein Zwischenverkauf und Irrtümer sind vorbehalten.
AGB:
Wir weisen auf unsere Allgemeinen Geschäftsbedingungen hin. Durch weitere Inanspruchnahme unserer Leistungen erklären Sie die Kenntnis und Ihr Einverständnis.
AUF WUNSCH empfehlen wir Ihnen Finanzierungsexperten !
Ihr Ansprechpartner
Zurück zur Übersicht




