Objekt 10 fra 12
Nfste objekt
Forrige objekt
Tilbage til oversigt
code
Tilbage til oversigt
Nfste objekt
Forrige objekt
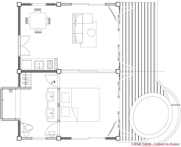
Tilbage til oversigtPhuket / Naka Bay:
objektnr.: PU_nakc
Hurtig kontakt
Valgmuligheder
Valgmuligheder
Nxgletal
Adresse:
83150 Phuket / Naka Bay
Pris:
230.000 €
Boligareal ca.:
60 m2
Antal vfrelser:
2
Andre data
Andre data
Etageantal:
1
Provisionspligtig:
nej
Køkken:
Elementkxkken
Bad:
Bruser, Vindu
Antal sovevfrelser:
1
Antal badevfrelser:
1
Terrasse:
1
Seniorvenlig:
ja
Haver:
ja
Pool:
ja
Klimaanlfg:
ja
Antal parkeringsomreder:
1
Møblering:
ja
Byggeer:
2018
Tilstand:
Fxrste indflytning
Din kontaktperson
Tilbage til oversigt













