Objekt 11 fra 12
Nfste objekt
Forrige objekt
Tilbage til oversigt
code
Tilbage til oversigt
Nfste objekt
Forrige objekt
Tilbage til oversigtPhuket / Patong Bay:
objektnr.: PU_patc
Hurtig kontakt
Valgmuligheder
Valgmuligheder
Nxgletal
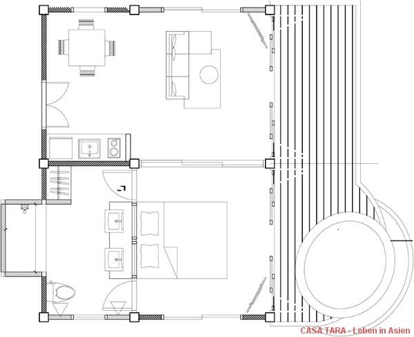
Adresse:
83150 Phuket / Patong Bay
Pris:
228.000 €
Boligareal ca.:
60 m2
Antal vfrelser:
2
Andre data
Andre data
Etageantal:
1
Provisionspligtig:
nej
Køkken:
Elementkxkken
Bad:
Bruser, Badekar, Vindu
Antal sovevfrelser:
1
Antal badevfrelser:
1
Terrasse:
1
Seniorvenlig:
ja
Haver:
ja
Pool:
ja
Klimaanlfg:
ja
Antal parkeringsomreder:
1
Møblering:
ja
Byggeer:
2019
Gulvbelfgning:
Parket
Tilstand:
Fxrste indflytning
Din kontaktperson
Tilbage til oversigt












