Property 11 from 12
Next property
Previous property
Back to the overview
code
Back to the overview
Next property
Previous property
Back to the overviewPhuket / Patong Bay:
Property ID: PU_patc
Quick Contact
Options
Options
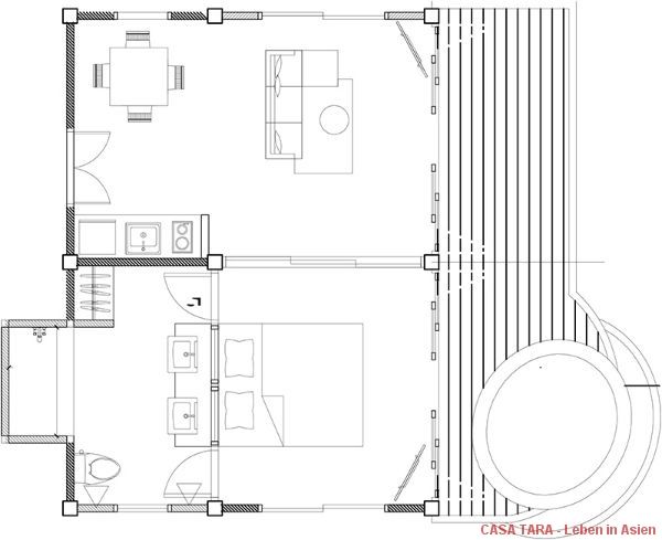
Basic information
Address:
83150 Phuket / Patong Bay
Price:
228.000 €
Living space:
60 sq. m.
No. of rooms:
2
Details
Details
Number of floors:
1
Subject to commission:
no
Kitchen:
Fitted kitchen
Bathroom:
Shower, Bathtub, Window
Number of bedrooms:
1
Number of bathrooms:
1
Terrace:
1
Suitable for the elderly:
yes
Garden:
yes
Pool:
yes
Air condition:
yes
Number of parking spaces:
1
Furnished:
yes
Year of construction:
2019
Floor covering:
Parquet flooring
Condition:
First occupier
Your contact person
Back to the overview












