Objekt 11 von 12
Nächstes Objekt
Vorheriges Objekt
Zurück zur Übersicht
code
Zurück zur Übersicht
Nächstes Objekt
Vorheriges Objekt
Zurück zur ÜbersichtBerlin: Attraktive 2-Zimmer-Wohnung in der SUAREZSTRASSE Nähe Lietzenseepark, Charlottenburg
Objekt-Nr.: 32
Schnellkontakt
Optionen
Optionen
Basisinformationen
Adresse:
14057 Berlin
Stadtteil:
Charlottenburg
Preis:
297.000 €
Wohnfläche ca.:
53,40 m²
Zimmeranzahl:
2
Weitere Informationen
Weitere Informationen
Etagenanzahl:
6
Provisionspflichtig:
ja
Provision:
3,57%
Küche:
Einbauküche
Bad:
Dusche
Qualität der Ausstattung:
normal
Baujahr:
1950
Zustand:
gepflegt
Heizung:
Zentralheizung, Fernwärme
Befeuerungsart:
Fernwärme
Beschreibung
Beschreibung
Objektbeschreibung:
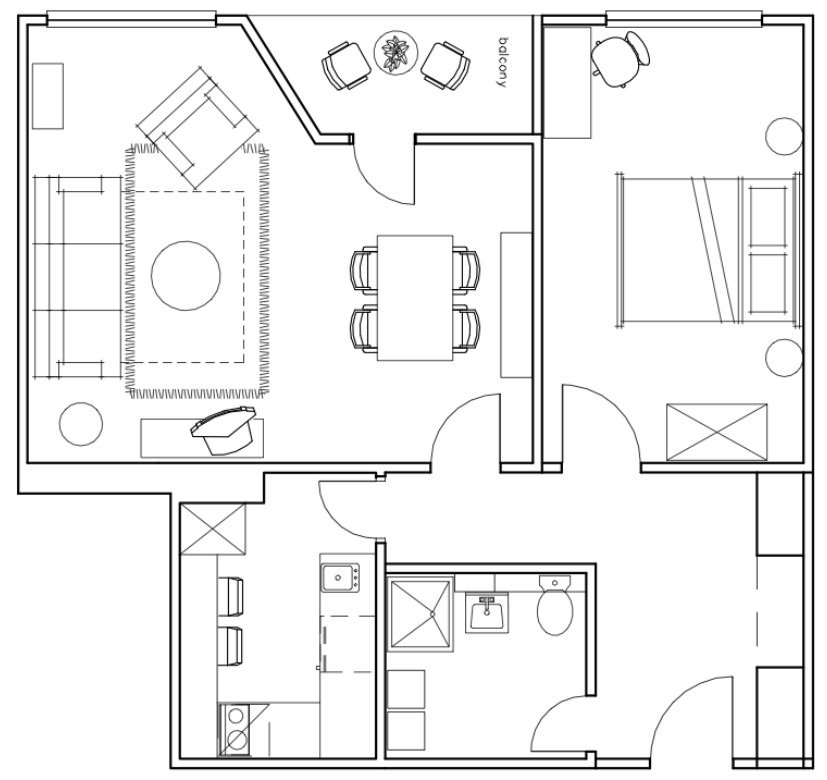
Zum Verkauf steht eine gepflegte 2-Zimmer-Wohnung mit ca. 53 m² Wohnfläche in erstklassiger Lage von Berlin-Charlottenburg, in der Suarezstraße, nur wenige Gehminuten vom Lietzenseepark entfernt. Die Wohnung liegt im Hochparterre eines gepflegten Wohnhauses mit 24 Einheiten aus dem Jahr 1963. Sie überzeugt durch eine durchdachte Raumaufteilung, ist gut gepflegt und bietet einen Balkon sowie ein Kellerabteil.
Beim Betreten der Wohnung gelangt man in einen L-förmigen Flurbereich. Links befindet sich das Badezimmer. Geradeaus führen zwei Türen zu den beiden Zimmern, von denen das größere Zimmer Zugang zum Balkon bietet. Beide Zimmer sind nach Westen bzw. Südwesten ausgerichtet und bieten eine helle und freundliche Atmosphäre. Die separate Küche ist ebenfalls vom Flur aus erreichbar. Die Wohnung wird zentral über Fernwärme beheizt.
Die Wohnung wird bezugsfrei verkauft und eignet sich sowohl für Eigennutzer als auch hervorragend als Kapitalanlage. Die Lage in unmittelbarer Nähe zum Lietzenseepark, einer der begehrtesten Gegenden in Berlin-Charlottenburg, macht diese Wohnung zu einer attraktiven Investition oder einem komfortablen Eigenheim.
Beim Betreten der Wohnung gelangt man in einen L-förmigen Flurbereich. Links befindet sich das Badezimmer. Geradeaus führen zwei Türen zu den beiden Zimmern, von denen das größere Zimmer Zugang zum Balkon bietet. Beide Zimmer sind nach Westen bzw. Südwesten ausgerichtet und bieten eine helle und freundliche Atmosphäre. Die separate Küche ist ebenfalls vom Flur aus erreichbar. Die Wohnung wird zentral über Fernwärme beheizt.
Die Wohnung wird bezugsfrei verkauft und eignet sich sowohl für Eigennutzer als auch hervorragend als Kapitalanlage. Die Lage in unmittelbarer Nähe zum Lietzenseepark, einer der begehrtesten Gegenden in Berlin-Charlottenburg, macht diese Wohnung zu einer attraktiven Investition oder einem komfortablen Eigenheim.
Lage:
Die Suarezstraße in Berlin Charlottenburg bietet eine attraktive Mikrolage in direkter Nähe zum beliebten Lietzenseepark. Dieser ruhige und grüne Stadtteil ist geprägt von gepflegten Wohnhäusern und einer angenehmen Nachbarschaftsatmosphäre. Die Umgebung ist gut erschlossen und bietet eine Vielzahl an Einkaufsmöglichkeiten, Cafés, Restaurants sowie kleinen Boutiquen, die fußläufig erreichbar sind. Der nahegelegene Lietzenseepark lädt zum Spazieren, Joggen oder Verweilen ein und bietet eine grüne Oase im Herzen der Stadt.
Die Verkehrsanbindung ist ausgezeichnet: Die S-Bahn-Station Charlottenburg und der U-Bahnhof Sophie-Charlotte-Platz sind schnell erreichbar und ermöglichen eine unkomplizierte Verbindung in die gesamte Stadt. Zudem bietet die Nähe zur Stadtautobahn eine gute Anbindung für Autofahrer. Insgesamt verbindet die Suarezstraße urbanes Wohnen mit grüner Umgebung und einer hervorragenden Infrastruktur.
Die Verkehrsanbindung ist ausgezeichnet: Die S-Bahn-Station Charlottenburg und der U-Bahnhof Sophie-Charlotte-Platz sind schnell erreichbar und ermöglichen eine unkomplizierte Verbindung in die gesamte Stadt. Zudem bietet die Nähe zur Stadtautobahn eine gute Anbindung für Autofahrer. Insgesamt verbindet die Suarezstraße urbanes Wohnen mit grüner Umgebung und einer hervorragenden Infrastruktur.
Provision:
Die Interperform Real Estate UG erhält beim Abschluss des notariellen Kaufvertrages vom Käufer eine Maklerprovision. Die Käuferprovision für diese Immobilie beträgt 3,57% inkl. gesetzlicher MwSt.
Anmerkung:
Weitere Informationen, wie einen Kaufratgeber , allgemeine Informationen der Region oder Informationen zur Kaufabwicklung können Sie von uns erhalten, vorzugsweise in einem Beratungsgespräch.
Die von uns gemachten Informationen beruhen auf Angaben des Verkäufers bzw. der Verkäuferin. Für die Richtigkeit und Vollständigkeit der Angaben kann keine Gewähr bzw. Haftung übernommen werden. Ein Zwischenverkauf und Irrtümer sind vorbehalten.
Die von uns gemachten Informationen beruhen auf Angaben des Verkäufers bzw. der Verkäuferin. Für die Richtigkeit und Vollständigkeit der Angaben kann keine Gewähr bzw. Haftung übernommen werden. Ein Zwischenverkauf und Irrtümer sind vorbehalten.
AGB:
Wir weisen auf unsere Allgemeinen Geschäftsbedingungen hin. Durch weitere Inanspruchnahme unserer Leistungen erklären Sie die Kenntnis und Ihr Einverständnis.
AUF WUNSCH empfehlen wir Ihnen Finanzierungsexperten !
Ihr Ansprechpartner
Zurück zur Übersicht








