Objekt 8 von 15
Nächstes Objekt
Vorheriges Objekt
Zurück zur Übersicht
code
Zurück zur Übersicht
Nächstes Objekt
Vorheriges Objekt
Zurück zur ÜbersichtBerlin: MILLA Modulhaus – Funktionales Wohnkonzept auf zwei Etagen mit Dachterrasse
Objekt-Nr.: DE-MMila
Schnellkontakt
Optionen
Optionen
Basisinformationen
Adresse:
10117 Berlin
Gebiet:
Wohngebiet
Preis:
Preis auf Anfrage
Wohnfläche ca.:
88 m²
Zimmeranzahl:
4
Weitere Informationen
Weitere Informationen
Haustyp:
Sonstiges
Anzahl Schlafzimmer:
2
Beschreibung
Beschreibung
Objektbeschreibung:
MILLA Modulhaus – Funktionales Wohnkonzept auf zwei Etagen mit Dachterrasse
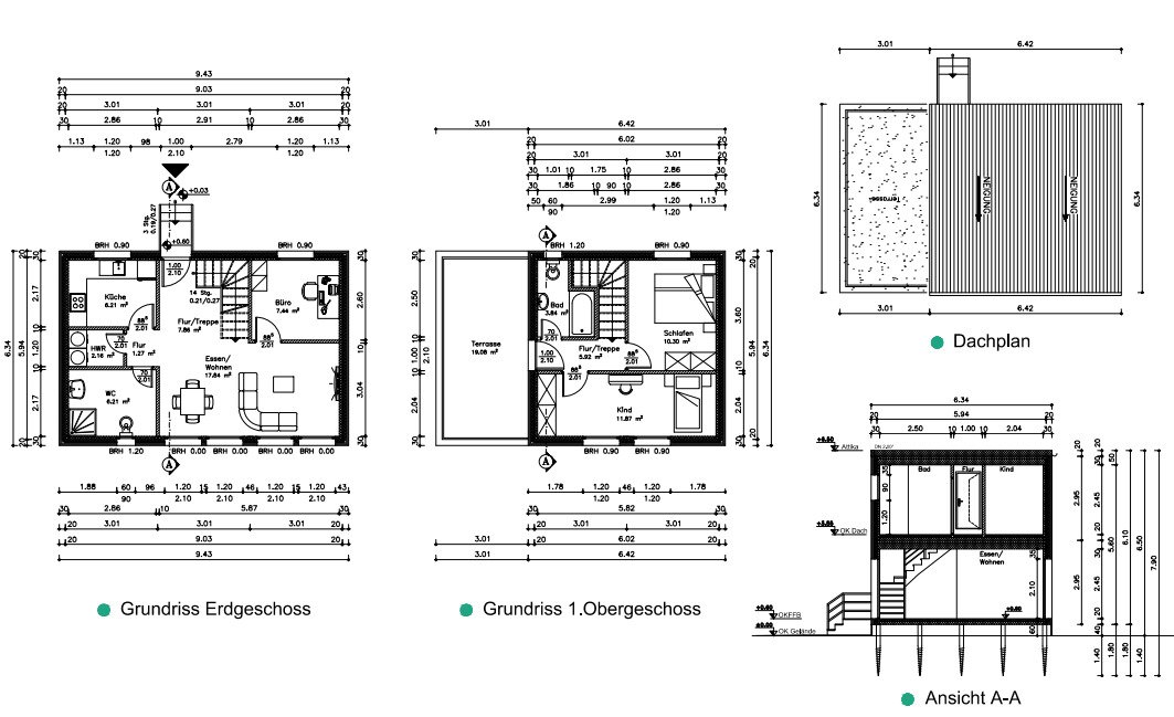
Das Modell MILLA bietet 87,28 m² Wohnfläche und bis zu 107,60 m² Bruttogrundfläche (inkl. Dachterrasse). Es besteht aus 5 Modulen, die vor Ort zu einem modernen, zweigeschossigen Modulhaus zusammengefügt werden.
Erdgeschoss: Küche, Wohn-/Essbereich, Büro, HWR, WC, Flur, Treppe
Obergeschoss: Zwei Schlafzimmer, Bad, Dachterrasse und Flur/Treppenbereich
Terrasse: 19,05 m² Dachterrasse
Gesamtfläche: 2 x 60,16 m² = 120,32 m² (anrechenbar: 107,60 m²)
Vorteile:
✅ Zwei Etagen mit intelligenter Raumaufteilung
✅ Inklusive großzügiger Dachterrasse
✅ Schnelle Bauzeit dank modularer Struktur
✅ Individuell gestaltbares Innenkonzept
Kontakt:
📧 info@gloim.com
📞 +49 151 475 33931
🌐 www.gloim.com
Das Modell MILLA bietet 87,28 m² Wohnfläche und bis zu 107,60 m² Bruttogrundfläche (inkl. Dachterrasse). Es besteht aus 5 Modulen, die vor Ort zu einem modernen, zweigeschossigen Modulhaus zusammengefügt werden.
Erdgeschoss: Küche, Wohn-/Essbereich, Büro, HWR, WC, Flur, Treppe
Obergeschoss: Zwei Schlafzimmer, Bad, Dachterrasse und Flur/Treppenbereich
Terrasse: 19,05 m² Dachterrasse
Gesamtfläche: 2 x 60,16 m² = 120,32 m² (anrechenbar: 107,60 m²)
Vorteile:
✅ Zwei Etagen mit intelligenter Raumaufteilung
✅ Inklusive großzügiger Dachterrasse
✅ Schnelle Bauzeit dank modularer Struktur
✅ Individuell gestaltbares Innenkonzept
Kontakt:
📧 info@gloim.com
📞 +49 151 475 33931
🌐 www.gloim.com
Anmerkung:
Weitere Informationen, wie einen Kaufratgeber , allgemeine Informationen der Region oder Informationen zur Kaufabwicklung können Sie von uns erhalten, vorzugsweise in einem Beratungsgespräch.
Die von uns gemachten Informationen beruhen auf Angaben des Verkäufers bzw. der Verkäuferin. Für die Richtigkeit und Vollständigkeit der Angaben kann keine Gewähr bzw. Haftung übernommen werden. Ein Zwischenverkauf und Irrtümer sind vorbehalten.
Die von uns gemachten Informationen beruhen auf Angaben des Verkäufers bzw. der Verkäuferin. Für die Richtigkeit und Vollständigkeit der Angaben kann keine Gewähr bzw. Haftung übernommen werden. Ein Zwischenverkauf und Irrtümer sind vorbehalten.
AGB:
Wir weisen auf unsere Allgemeinen Geschäftsbedingungen hin. Durch weitere Inanspruchnahme unserer Leistungen erklären Sie die Kenntnis und Ihr Einverständnis.
AUF WUNSCH empfehlen wir Ihnen Finanzierungsexperten !
Ihr Ansprechpartner
Zurück zur Übersicht




