Objekt 1 von 10
Nächstes Objekt
Zurück zur Übersicht
code
Zurück zur Übersicht
Nächstes Objekt
Zurück zur ÜbersichtMünchen: Traumhafte Dachterrassenwohnung München-Moosach
Objekt-Nr.: News 25/461
Schnellkontakt
Optionen
Optionen
Basisinformationen
Adresse:
80993 München
Bayern
Bayern
Preis:
398.000 €
Wohnfläche ca.:
50 m²
Zimmeranzahl:
2
Weitere Informationen
Weitere Informationen
Wohnungstyp:
Dachgeschoss
Etage:
4
Provision:
3,57 % Käuferprovision inkl. MwSt., verdient und f
Nutzfläche ca.:
57,40 m²
Anzahl Schlafzimmer:
1
Anzahl Badezimmer:
1
Balkon:
1
Terrasse:
1
Keller:
ja
Fahrstuhl:
ja
Anzahl der Parkflächen:
1
Anzahl der Parkflächen:
1 x Tiefgarage
Baujahr:
1989
Zustand:
modernisiert
Heizung:
Zentralheizung
Befeuerungsart:
Gas
Energieausweistyp:
Verbrauchsausweis - gültig bis 12.10.2027
Energieeffizienz-Klasse:
C
Energieverbrauchs-Kennwert:
81,80 kWh/(m²*a)
Baujahr laut Energieausweis:
1991
Beschreibung
Beschreibung
Objektbeschreibung:
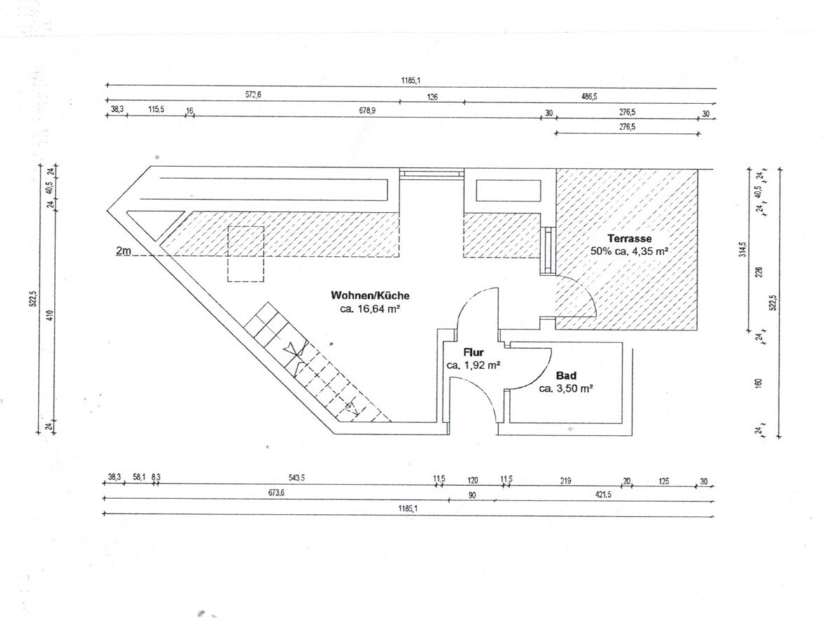
Willkommen in Ihrem neuen Zuhause - einer traumhaften Maisonettwohnung im Dachgeschoss. Diese charmante Wohnung lädt Sie, mit ihren ca. 57m" Wohn-/Nutzfläche und zwei gemütlichen Räumen auf zwei Ebenen, zum Wohlfühlen ein. Dank der gelungenen Modernisierung erwartet Sie hier ein zeitloses und stilvolles Ambiente. Das Bad ist modern ausgestattet und lässt keine Wünsche offen. In der hellen, offenen Küche ist die Essecke integriert. Vom Wohnraum aus bietet die große, nach Westen orientierte Dachterrasse einen perfekten Rückzugsort zur Entspannung. Hier genießen Sie abends tolle Sonnenuntergänge.
Ein begehbarer Kleiderraum im ausgebauten Dachraum und ein praktischer Keller bieten Ihnen zusätzlichen Komfort und wertvollen Stauraum. Zur Wohnung gehört ein Tiefgarageneinzelstellplatz (Kaufpreis: 30.000,€). Dieser befindet sich - ganz bequem - direkt neben dem Treppenhauszugang.
Ein begehbarer Kleiderraum im ausgebauten Dachraum und ein praktischer Keller bieten Ihnen zusätzlichen Komfort und wertvollen Stauraum. Zur Wohnung gehört ein Tiefgarageneinzelstellplatz (Kaufpreis: 30.000,€). Dieser befindet sich - ganz bequem - direkt neben dem Treppenhauszugang.
Ausstattung:
- helle Einbauküche mit Herd, Geschirrspülmaschine, Waschmaschine
- separater großer Kühlschrank
- modernes Bad, großes Wand-Foto hinter Glas an der Badewanne
- Internetradio im Bad
- Steinfußboden im Bad und Flur
- Schiebetüren vom Gang zum Bad und zum Wohnzimmer aus Glas
- Einbauschrank im Gang mit Spiegeltüren
- große Sonnenmarkise auf der Dachterrasse
- 3 Dachfenster Velux mit elektrischem Außenrollo
- Glasfaserkabel bereits im Haus
- Tiefgarageneinzelstellplatz (kein Duplex)
- separater großer Kühlschrank
- modernes Bad, großes Wand-Foto hinter Glas an der Badewanne
- Internetradio im Bad
- Steinfußboden im Bad und Flur
- Schiebetüren vom Gang zum Bad und zum Wohnzimmer aus Glas
- Einbauschrank im Gang mit Spiegeltüren
- große Sonnenmarkise auf der Dachterrasse
- 3 Dachfenster Velux mit elektrischem Außenrollo
- Glasfaserkabel bereits im Haus
- Tiefgarageneinzelstellplatz (kein Duplex)
Lage:
Diese attraktive Dachgeschosswohnung liegt im nördlichen Teil von München, eingebettet in dem charmanten und lebenswerten Stadtteil Moosach. Die Lage der Wohnung zeichnet sich durch eine ruhige und freundliche Atmosphäre aus. Sie liegt auf der von der Straße abgewandten Seite, mit Blick in den großzügigen, ruhigen Innenhof. In unmittelbarer Nähe finden sich eine Vielzahl von Einkaufsmöglichkeiten, Restaurants und Cafés, die kulinarische Vielfalt und Alltagserleichterungen bieten.
Für Naturliebhaber sind der nahegelegene Olympiapark, sowie diverse Grünflächen ideal für erholsame Spaziergänge und Freizeitaktivitäten. Die Anbindung an den öffentlichen Nahverkehr ist exzellent, mit verschiedenen Bus, S-Bahn und U-Bahn-Linien, die eine schnelle und unkomplizierte Erreichbarkeit der Münchner Innenstadt und den Flughafen ermöglichen. Zusätzlich bietet die Lage der Wohnung eine bequeme Anbindung an die Autobahnen, was eine ideale Voraussetzung für Pendler darstellt. Die Kombination aus urbaner Nähe und naturnaher Umgebung macht diese Wohnlage zu einem besonders begehrten Ort, um das Leben in München in vollen Zügen zu genießen.
Für Naturliebhaber sind der nahegelegene Olympiapark, sowie diverse Grünflächen ideal für erholsame Spaziergänge und Freizeitaktivitäten. Die Anbindung an den öffentlichen Nahverkehr ist exzellent, mit verschiedenen Bus, S-Bahn und U-Bahn-Linien, die eine schnelle und unkomplizierte Erreichbarkeit der Münchner Innenstadt und den Flughafen ermöglichen. Zusätzlich bietet die Lage der Wohnung eine bequeme Anbindung an die Autobahnen, was eine ideale Voraussetzung für Pendler darstellt. Die Kombination aus urbaner Nähe und naturnaher Umgebung macht diese Wohnlage zu einem besonders begehrten Ort, um das Leben in München in vollen Zügen zu genießen.
Sonstiges:
Wir laden Sie herzlich ein, Ihre Fragen bei einer persönlichen Begehung mit uns zu besprechen. Sie erreichen uns, auch außerhalb der gewöhnlichen Geschäftszeiten, unter Mobil +491716850880. Wir freuen uns auf Ihren Anruf.
Wie finanzieren Sie den Kauf? Holen Sie sich einfach auf unserer WEB-Seite - https://www.weirauch-immobilien.de/ - ein unverbindliches, individuelles Angebot.
Alle Angaben und Maße sind freibleibend, unverbindlich, ohne Gewähr und basieren ausschließlich auf Informationen, die uns von unserem Auftraggeber mitgeteilt wurden. Die Grundrisse sind nicht maßstabgetreu und dienen lediglich der Veranschaulichung. Wir übernehmen keine Gewähr für Vollständigkeit, Richtigkeit und Aktualität dieser Angaben. Die Analysierung, Strukturierung und Erstellung des Exposés erfolgt z.T. mit Hilfe von KI. Zwischenvermittlung bleibt vorbehalten. Der Energieausweis wird bei der Erstbesichtigung vorgelegt.
Wir weisen Sie darauf hin, dass unsere Tätigkeit im Erfolgsfall eine Vermittlungs- und oder Nachweisprovision nach sich zieht, die 3,57% inkl. MwSt., des notariell beurkundeten Kaufpreises beträgt. Fällig mit notarieller Beurkundung des Kaufvertrages. Mit dem Verkäufer ist ein wirtschaftlich gleichwertiger Maklervertrag geschlossen worden. Sollte Ihnen die von uns nachgewiesene Immobilie bereits bekannt sein, teilen Sie uns dieses bitte unverzüglich mit. Die Weitergabe dieses Exposés an Dritte ohne unsere Zustimmung löst gegebenenfalls Schadensersatzansprüche aus. Es gelten unsere Allgemeinen Geschäftsbedingungen.
Wie finanzieren Sie den Kauf? Holen Sie sich einfach auf unserer WEB-Seite - https://www.weirauch-immobilien.de/ - ein unverbindliches, individuelles Angebot.
Alle Angaben und Maße sind freibleibend, unverbindlich, ohne Gewähr und basieren ausschließlich auf Informationen, die uns von unserem Auftraggeber mitgeteilt wurden. Die Grundrisse sind nicht maßstabgetreu und dienen lediglich der Veranschaulichung. Wir übernehmen keine Gewähr für Vollständigkeit, Richtigkeit und Aktualität dieser Angaben. Die Analysierung, Strukturierung und Erstellung des Exposés erfolgt z.T. mit Hilfe von KI. Zwischenvermittlung bleibt vorbehalten. Der Energieausweis wird bei der Erstbesichtigung vorgelegt.
Wir weisen Sie darauf hin, dass unsere Tätigkeit im Erfolgsfall eine Vermittlungs- und oder Nachweisprovision nach sich zieht, die 3,57% inkl. MwSt., des notariell beurkundeten Kaufpreises beträgt. Fällig mit notarieller Beurkundung des Kaufvertrages. Mit dem Verkäufer ist ein wirtschaftlich gleichwertiger Maklervertrag geschlossen worden. Sollte Ihnen die von uns nachgewiesene Immobilie bereits bekannt sein, teilen Sie uns dieses bitte unverzüglich mit. Die Weitergabe dieses Exposés an Dritte ohne unsere Zustimmung löst gegebenenfalls Schadensersatzansprüche aus. Es gelten unsere Allgemeinen Geschäftsbedingungen.
Anmerkung:
Weitere Informationen, wie einen Kaufratgeber , allgemeine Informationen der Region oder Informationen zur Kaufabwicklung können Sie von uns erhalten, vorzugsweise in einem Beratungsgespräch.
Die von uns gemachten Informationen beruhen auf Angaben des Verkäufers bzw. der Verkäuferin. Für die Richtigkeit und Vollständigkeit der Angaben kann keine Gewähr bzw. Haftung übernommen werden. Ein Zwischenverkauf und Irrtümer sind vorbehalten.
Die von uns gemachten Informationen beruhen auf Angaben des Verkäufers bzw. der Verkäuferin. Für die Richtigkeit und Vollständigkeit der Angaben kann keine Gewähr bzw. Haftung übernommen werden. Ein Zwischenverkauf und Irrtümer sind vorbehalten.
AGB:
Wir weisen auf unsere Allgemeinen Geschäftsbedingungen hin. Durch weitere Inanspruchnahme unserer Leistungen erklären Sie die Kenntnis und Ihr Einverständnis.
AUF WUNSCH empfehlen wir Ihnen Finanzierungsexperten !
Ihr Ansprechpartner
Zurück zur Übersicht

















