Property 14 from 14
Previous property
Back to the overview
code
Back to the overview
Previous property
Back to the overviewBerlin: Modular Home Type “FABIENNE” – Designed for Families, Efficient and Modern Living
Property ID: DE-MFabienne
Quick Contact
Options
Options
Basic information
Address:
10117 Berlin
Price:
Price on request
Living space:
31 sq. m.
No. of rooms:
3
Details
Details
Type of house:
Miscellaneous
Number of bedrooms:
2
Further information
Further information
Property description:
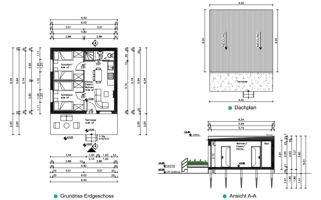
Modular Home Type “FABIENNE” – Designed for Families, Efficient and Modern Living
FABIENNE – Ideal for Families and Small Groups
The “Fabienne” model is a modular home solution offering 23.68 m² of living space and 36.52 m² of gross area. With a compact design and two separate bedrooms (each 8.06 m²), it ensures comfort for families or small groups. The central living and kitchen area (13.56 m²) promotes communal living. An optional terrace of 12.84 m² adds outdoor usability. This 1-module home is ideal for those seeking functionality and a modern lifestyle in a compact structure.
Advantages:
✅ Fast delivery thanks to modular setup✅ Customizable interiors upon request✅ Compact, modern design compatible with nature✅ Multiple layout options to meet various needs
Contact:📧 info@gloim.com📞 +49 151 475 33931🌐 www.gloim.com
FABIENNE – Ideal for Families and Small Groups
The “Fabienne” model is a modular home solution offering 23.68 m² of living space and 36.52 m² of gross area. With a compact design and two separate bedrooms (each 8.06 m²), it ensures comfort for families or small groups. The central living and kitchen area (13.56 m²) promotes communal living. An optional terrace of 12.84 m² adds outdoor usability. This 1-module home is ideal for those seeking functionality and a modern lifestyle in a compact structure.
Advantages:
✅ Fast delivery thanks to modular setup✅ Customizable interiors upon request✅ Compact, modern design compatible with nature✅ Multiple layout options to meet various needs
Contact:📧 info@gloim.com📞 +49 151 475 33931🌐 www.gloim.com
Your contact person
Back to the overview




