Objekt 14 von 14
Vorheriges Objekt
Zurück zur Übersicht

Berlin: Modulhaus FABIENNE – Kompakt, Komfortabel, Familienfreundlich

Objekt-Nr.: DE-MFabienne
  • 2
  • 1
  • 3
2
1
3
Schnellkontakt
Basisinformationen
Adresse:
10117 Berlin
Preis:
Preis auf Anfrage
Wohnfläche ca.:
31 m²
Zimmeranzahl:
3
Weitere Informationen
Weitere Informationen
Haustyp:
Sonstiges
Anzahl Schlafzimmer:
2
Beschreibung
Beschreibung
Objektbeschreibung:
Modulhaus FABIENNE – Kompakt, Nachhaltig, Familiengerecht

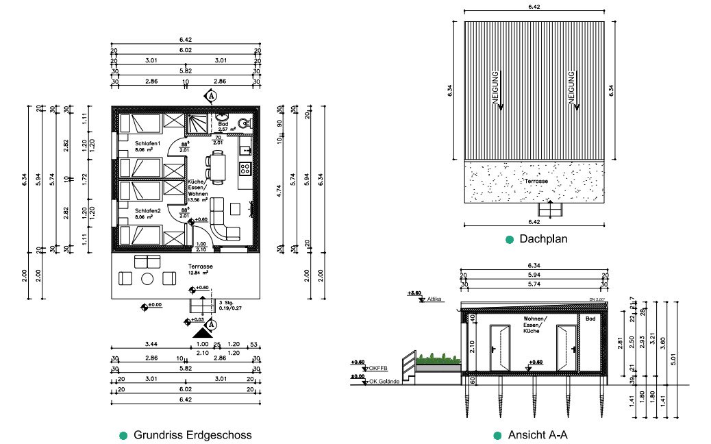
Das Modell FABIENNE ist ein clever geplantes Modulhaus mit zwei Schlafzimmern, das sich ideal für kleine Familien oder als nachhaltiges Ferienhaus eignet. Mit einer Wohnfläche von 30,68 m² und einer Terrasse von 12,84 m² bietet dieses kompakte Haus ein erstaunlich komfortables Raumgefühl. Der offene Wohn-, Ess- und Kochbereich (13,56 m²) schafft ein modernes, einladendes Zentrum des Hauses. Das Haus wird als ein einzelnes Modul geliefert und ist dadurch besonders schnell montierbar.

Besonderheiten:

2 Schlafzimmer à 8,06 m² – ideal für Kinder, Gäste oder als Homeoffice

Offener Wohnbereich mit integrierter Küche und Essecke

Platzsparende Architektur mit cleverer Raumnutzung

Terrasse mit 12,84 m² für entspannte Outdoor-Zeiten

Modernes Design, ideal für Stadt, Land oder Feriengebiete

Erleben Sie modulare Freiheit mit dem Modell FABIENNE –
für zukunftsorientiertes Wohnen.

Vorteile:

✅ Schnelle Lieferung durch modulare Bauweise✅ Innenausstattung individuell anpassbar✅ Kompakte, nachhaltige Architektur✅ Perfekt für Familien, Singles oder als Mietobjekt

Kontakt:

📧 info@gloim.com📞 +49 151 475 33931🌐 www.gloim.com

Anmerkung:
Weitere Informationen, wie einen Kaufratgeber , allgemeine Informationen der Region oder Informationen zur Kaufabwicklung können Sie von uns erhalten, vorzugsweise in einem Beratungsgespräch.
Die von uns gemachten Informationen beruhen auf Angaben des Verkäufers bzw. der Verkäuferin. Für die Richtigkeit und Vollständigkeit der Angaben kann keine Gewähr bzw. Haftung übernommen werden. Ein Zwischenverkauf und Irrtümer sind vorbehalten.
AGB:
Wir weisen auf unsere Allgemeinen Geschäftsbedingungen hin. Durch weitere Inanspruchnahme unserer Leistungen erklären Sie die Kenntnis und Ihr Einverständnis.
 
AUF WUNSCH empfehlen wir Ihnen Finanzierungsexperten !
Ihr Ansprechpartner
 


Gloim
Telefon: 0090 543 828 7362
Fax: Keine Termine vor Ort
code

Zurück zur Übersicht