Objekt 43 från 80
nästa objekt
föregående objekt
tillbaka till översikten
tillbaka till översikten
nästa objekt
föregående objekt
tillbaka till översiktenPattaya / Pratumnak:
objekt-nr.: JT_tre
Snabbkontakt
alternativ
alternativ
huvuddata
adress:
20150 Pattaya / Pratumnak
pris:
81.000 €
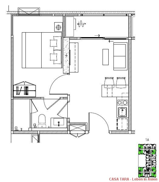
bostadsyta ca.:
35 kvm.
antal rum:
2
ytterligare data
ytterligare data
Lägenhetstyp:
Etagevåning
Antal våningar:
8
Provisionsbaserad:
nej
Kök:
Köksdel
Badrum:
Dusch
Antal sovrum:
1
Antal badrum:
1
balkon:
1
pool:
ja
klimatanläggning:
ja
hiss:
ja
Möblering:
ja
byggår:
2015
Golvbeläggning:
Golv
tillstånd:
Första inflyttning
Din kontaktperson
tillbaka till översikten












