13/14 sonuç
Sonraki emlak
Bir önceki ürün
Geri dön

Berlin: OLGA Modüler Ev – Kompakt Konfor, Modern Yaşam

Emlak No.: DE-MOlga
  • 2
  • 3
  • 1
2
3
1
Hızlı iletişim
Ana bilgiler
Adres:
10117 Berlin
Bölge:
Yerlesim Bölgesi
Fiyat:
Belirtilmemiş
Yaklaşık Oturma Alanı:
35 m2
Oda sayısı:
2
Ek bilgiler
Ek bilgiler
Ev tipi:
Diger
Yatak Odası Sayısı:
1
Detayli Tanitim
Detayli Tanitim
ürün Tanitim:
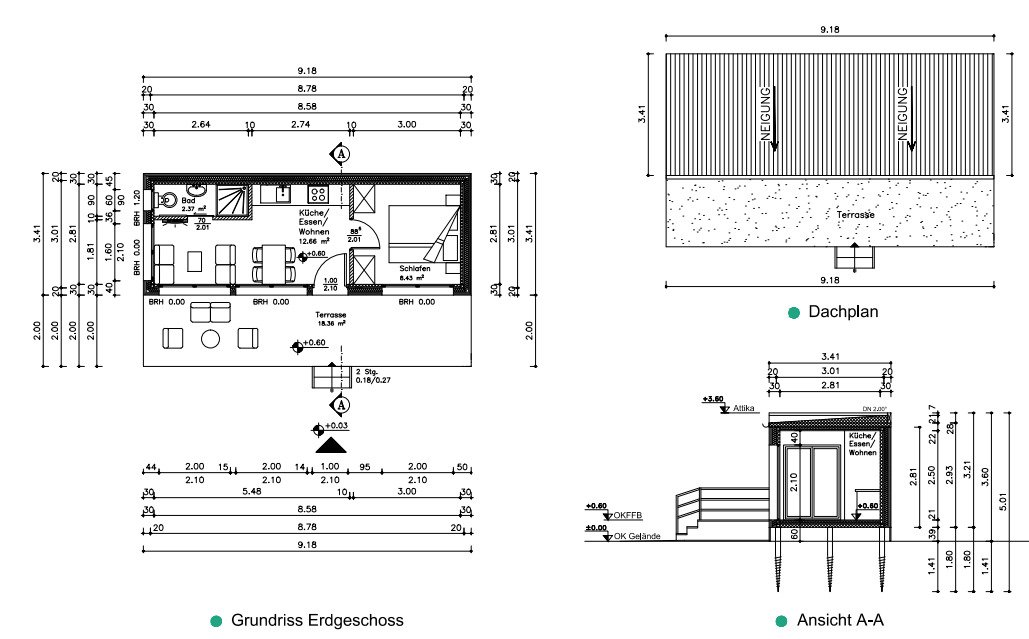
OLGA Modüler Ev – Kompakt Konfor, Modern Yaşam
OLGA modeli, 1 modülden oluşan, toplam 33,46 m² brüt alana ve 21,09 m² net yaşam alanına sahip, minimalist ve fonksiyonel bir yaşam çözümüdür. Açık planlı oturma ve yemek alanı 12,66 m² büyüklüğündedir ve 8,43 m²'lik konforlu bir yatak odası ile tamamlanır. 18,36 m² büyüklüğündeki geniş teras alanı, doğa ile iç içe yaşama imkânı sunar. OLGA, bireysel yaşam, yazlık konut veya yatırım amaçlı kısa süreli kiralama için ideal bir modeldir.

Avantajlar:
✅ Kompakt ve modüler yapı sayesinde hızlı teslimat
✅ Doğa ile uyumlu, sade ve modern tasarım
✅ İsteğe bağlı özelleştirilebilir iç mekânlar
✅ Açık hava yaşamını destekleyen geniş teras

İletişim:
📧 info@gloim.com
📞 +49 151 475 33931
🌐 www.gloim.com


Not:
Tüm bilgiler Satıcılar tarafından verildiği için eksik veya yanlış bilgiler Firmamızı bağlamaz. Eksik bilgi veya Objenin satılmış olması olağandır.
 
Ticari koşullarımızı okuyup anladığınızı beyan ederek,hizmet başvurunuzda bunu kabullenmiş sayarız.
İstek üzereine size obje Finansı hakkında bilgi ve yönlendirmede yardımcı oluruz.
İlgili kişi
 


Gloim
Telefon: 0090 543 828 7362
Fax: Keine Termine vor Ort
code

Geri dön