14/14 sonuç
Bir önceki ürün
Geri dön

Berlin: Modüler Ev Tipi “FABIENNE” – Ailelere Yönelik, Verimli ve Modern Yaşam

Emlak No.: DE-MFabienne
  • 2
  • 1
  • 3
2
1
3
Hızlı iletişim
Ana bilgiler
Adres:
10117 Berlin
Fiyat:
Belirtilmemiş
Yaklaşık Oturma Alanı:
31 m2
Oda sayısı:
3
Ek bilgiler
Ek bilgiler
Ev tipi:
Diger
Yatak Odası Sayısı:
2
Detayli Tanitim
Detayli Tanitim
ürün Tanitim:
Modüler Ev Tipi “FABIENNE” – Ailelere Yönelik, Verimli ve Modern Yaşam

FABIENNE – Aileler ve Küçük Gruplar İçin İdeal
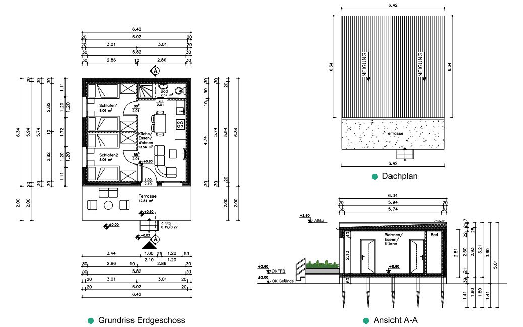
“Fabienne” modeli, 23,68 m² yaşam alanı ve 36,52 m² brüt alana sahip modüler bir konut çözümüdür. İki ayrı yatak odası (her biri 8,06 m²) ile kompakt yapısında rahatlık sunar. Merkezi mutfak ve yaşam alanı (13,56 m²), birlikte yaşamı teşvik eder. 12,84 m²’lik opsiyonel terası ile dış mekân kullanımı genişletilebilir. Tek modülden oluşan bu yapı, kompakt yapıda işlevsel ve modern bir yaşam tarzı arayanlar için idealdir.

Avantajlar:
✅ Modüler kurulum sayesinde hızlı teslimat✅ Tercihe göre özelleştirilebilir iç mekânlar✅ Kompakt, modern ve doğayla uyumlu mimari✅ Her ihtiyaca uygun farklı plan seçenekleri

İletişim Bilgileri:📧 info@gloim.com📞 +49 151 475 33931🌐 www.gloim.com

Not:
Tüm bilgiler Satıcılar tarafından verildiği için eksik veya yanlış bilgiler Firmamızı bağlamaz. Eksik bilgi veya Objenin satılmış olması olağandır.
 
Ticari koşullarımızı okuyup anladığınızı beyan ederek,hizmet başvurunuzda bunu kabullenmiş sayarız.
İstek üzereine size obje Finansı hakkında bilgi ve yönlendirmede yardımcı oluruz.
İlgili kişi
 


Gloim
Telefon: 0090 543 828 7362
Fax: Keine Termine vor Ort
code

Geri dön