Objekt 1 fra 1
Tilbage til oversigt
Tilbage til oversigt
Tilbage til oversigtAlanya Avsallar Incekum: Einstiegsobjekt !!! Schnäppchenpreis !!!Schlüsselfertige Neubauvilla mit Super-Ausstattung und Pool inkl.
objektnr.: AvsPro03
Hurtig kontakt
Valgmuligheder
Valgmuligheder
Nxgletal
Adresse:
07410 Alanya Avsallar Incekum
Pris:
124.999 €
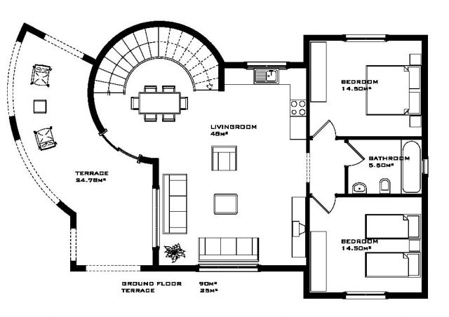
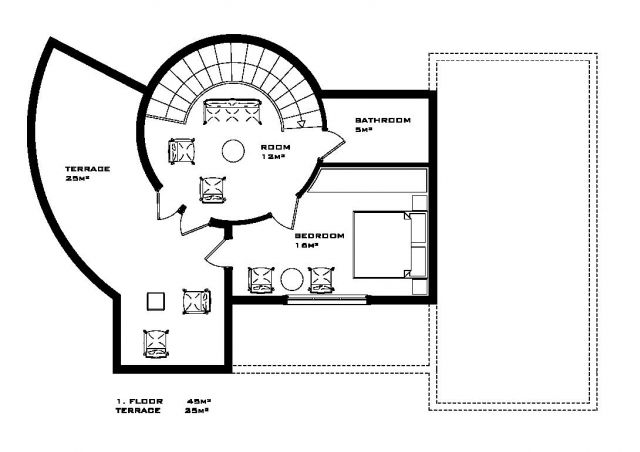
Boligareal ca.:
135 m2
Grundstykke:
500 m2
Antal vfrelser:
4
Andre data
Andre data
Hustype:
Villa
Etageantal:
2
Køkken:
Elementkxkken
Bad:
Bruser, Badekar, Vindu
Antal sovevfrelser:
3
Antal badevfrelser:
2
Terrasse:
2
Kamin:
ja
Pool:
ja
Kflder:
med fuld kælder
Klimaanlfg:
ja
Antal parkeringsomreder:
1 x Udendørs parkeringsplads
Udsigt:
Havudsigt
Udstyrets kvalitet:
Luksus
Byggeer:
2023
Byggefase:
Planlagt hus (projekteret)
Udlejes fra:
2023
Gulvbelfgning:
Laminat
Tilstand:
Planlagt hus (projekteret)
Opvarmning:
Gulv
Udfxrlig beskrivelse
Udfxrlig beskrivelse
Objektbeskrivelse:
Eine preiswerte aber wunderschöne Villa in toller Qualität und Komplettausstattung , sogar der ca. 30qm grosse Pool ist im Preis enthalten, wir müssen nur noch Ihr Grundstück aussuchen und los geht es. Die Bauzeit wird 6 Monate nicht überschreiten. Wir müssen nur noch gemeinsam ein Grundstück aussuchen und los geht es, viel verschiedene Grundstücke sind vorhanden, das Grundstück ist nicht im Preis enthalten.
Faciliteter:
Braas Dach
Stahleingangstür
Innentüren Panel
Kälte-, Schall- und hitzebeständige Wände
PVC Fenster / doppelglasig mit elektrischen Aussenjalousien
Standardeinbauküche mit E- Geräten
Wohn- und Schlafzimmer als auch Kinderzimmer mit Laminatböden
Feinputz sowie Stuck mit integrierten Spotlampen
Küche, Bad und Diele mit Keramikfliesen
Bad mit Zwischendecke und integrierten Spotlampen
Unterbauspülkasten im Bad
Badeinbaumöbel
Duschkabine aus Kunststoff
Handtuchtrockner im Bad
Heisswasser Elektrisch
Alle Bäder haben Fussbodenheizung
Sat - TV anschluss
Telefonanschluss
Alle Zimmer haben Klimaanlagen
Treppen- und Balkongeländer aus Aluminium
Swimmingpool
Autoabstellplatz
Stahleingangstür
Innentüren Panel
Kälte-, Schall- und hitzebeständige Wände
PVC Fenster / doppelglasig mit elektrischen Aussenjalousien
Standardeinbauküche mit E- Geräten
Wohn- und Schlafzimmer als auch Kinderzimmer mit Laminatböden
Feinputz sowie Stuck mit integrierten Spotlampen
Küche, Bad und Diele mit Keramikfliesen
Bad mit Zwischendecke und integrierten Spotlampen
Unterbauspülkasten im Bad
Badeinbaumöbel
Duschkabine aus Kunststoff
Handtuchtrockner im Bad
Heisswasser Elektrisch
Alle Bäder haben Fussbodenheizung
Sat - TV anschluss
Telefonanschluss
Alle Zimmer haben Klimaanlagen
Treppen- und Balkongeländer aus Aluminium
Swimmingpool
Autoabstellplatz
Bemfrkning:
Die von uns gemachten Informationen beruhen auf Angaben des Verkäufers bzw. der Verkäuferin. Für die Richtigkeit und Vollständigkeit der Angaben kann keine Gewähr bzw. Haftung übernommen werden. Ein Zwischenverkauf und Irrtümer sind vorbehalten.
Generelle forretningsbetingelser:
Wir weisen auf unsere Allgemeinen Geschäftsbedingungen hin. Durch weitere Inanspruchnahme unserer Leistungen erklären Sie die Kenntnis und Ihr Einverständnis.
AUF WUNSCH empfehlen wir Ihnen Finanzierungsexperten von namhaften Häusern wie der Deutschen Vermögensberatung und anderen.
Tilbage til oversigt



