Objekt 1 från 1
tillbaka till översikten

Alanya Avsallar Incekum: Einstiegsobjekt !!! Schnäppchenpreis !!!Schlüsselfertige Neubauvilla mit Super-Ausstattung und Pool inkl.

objekt-nr.: AvsPro03
  •  
  •  
  •  
 
 
 
Snabbkontakt
huvuddata
adress:
07410 Alanya Avsallar Incekum
pris:
124.999 €
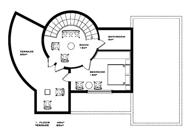
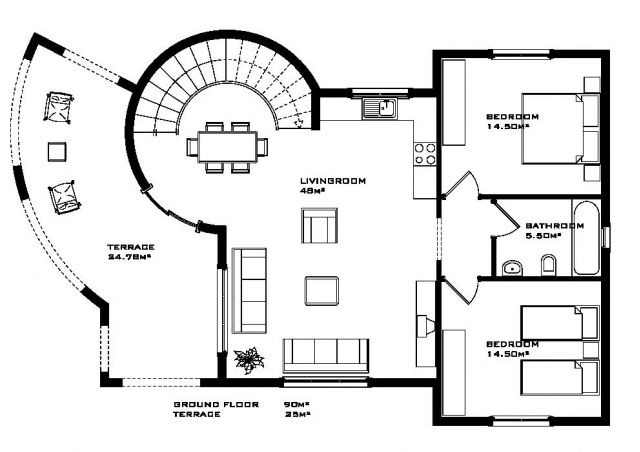
bostadsyta ca.:
135 kvm.
tomt ca.:
500 kvm.
antal rum:
4
ytterligare data
ytterligare data
Hustyp:
Villa
Antal våningar:
2
Kök:
Köksdel
Badrum:
Dusch, Badkar, Fönster
Antal sovrum:
3
Antal badrum:
2
terrass:
2
öppen spis:
ja
pool:
ja
källare:
hel källare
klimatanläggning:
ja
Antal parkeringsplatser:
1 x Parkeringsplatser utomhus
Utsikt:
Sjöutsikt
Utrustningens kvalitet:
Lyx
byggår:
2023
Byggnadsfas:
Planerat hus (projekterat)
Ledig från:
2023
Golvbeläggning:
Laminat
tillstånd:
Planerat hus (projekterat)
värme:
Golv
Utförlig beskrivning
Utförlig beskrivning
Objektsbeskrivning:
Eine preiswerte aber wunderschöne Villa in toller Qualität und Komplettausstattung , sogar der ca. 30qm grosse Pool ist im Preis enthalten, wir müssen nur noch Ihr Grundstück aussuchen und los geht es. Die Bauzeit wird 6 Monate nicht überschreiten. Wir müssen nur noch gemeinsam ein Grundstück aussuchen und los geht es, viel verschiedene Grundstücke sind vorhanden, das Grundstück ist nicht im Preis enthalten.
Utrustning:
Braas Dach
Stahleingangstür
Innentüren Panel
Kälte-, Schall- und hitzebeständige Wände
PVC Fenster / doppelglasig mit elektrischen Aussenjalousien
Standardeinbauküche mit E- Geräten
Wohn- und Schlafzimmer als auch Kinderzimmer mit Laminatböden
Feinputz sowie Stuck mit integrierten Spotlampen
Küche, Bad und Diele mit Keramikfliesen
Bad mit Zwischendecke und integrierten Spotlampen
Unterbauspülkasten im Bad
Badeinbaumöbel
Duschkabine aus Kunststoff
Handtuchtrockner im Bad
Heisswasser Elektrisch
Alle Bäder haben Fussbodenheizung
Sat - TV anschluss
Telefonanschluss
Alle Zimmer haben Klimaanlagen
Treppen- und Balkongeländer aus Aluminium
Swimmingpool
Autoabstellplatz
anmärkning:
Die von uns gemachten Informationen beruhen auf Angaben des Verkäufers bzw. der Verkäuferin. Für die Richtigkeit und Vollständigkeit der Angaben kann keine Gewähr bzw. Haftung übernommen werden. Ein Zwischenverkauf und Irrtümer sind vorbehalten.
allmänna affärsvillkor:
Wir weisen auf unsere Allgemeinen Geschäftsbedingungen hin. Durch weitere Inanspruchnahme unserer Leistungen erklären Sie die Kenntnis und Ihr Einverständnis.
 
AUF WUNSCH empfehlen wir Ihnen Finanzierungsexperten von namhaften Häusern wie der Deutschen Vermögensberatung und anderen.
Din kontaktperson
 


Gloim
telefon: 0090 543 828 7362
fax: Keine Termine vor Ort
code

tillbaka till översikten