Property 1 from 1
Back to the overview
Back to the overview
Back to the overviewAlanya Avsallar Incekum: Einstiegsobjekt !!! Schnäppchenpreis !!!Schlüsselfertige Neubauvilla mit Super-Ausstattung und Pool inkl.
Property ID: AvsPro03
Quick Contact
Options
Options
Basic information
Address:
07410 Alanya Avsallar Incekum
Price:
124.999 €
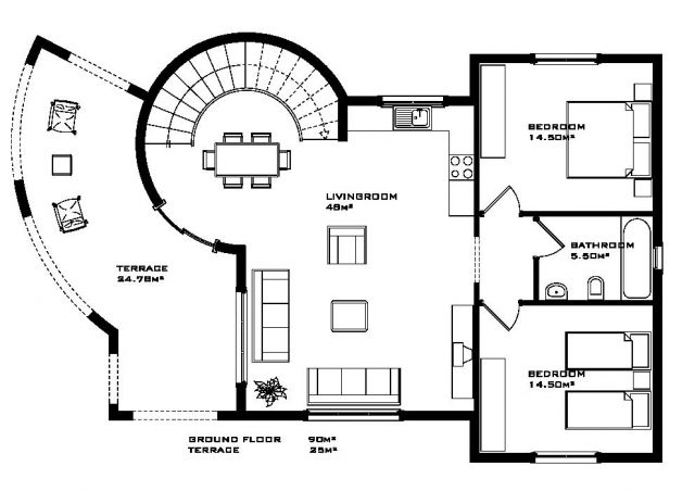
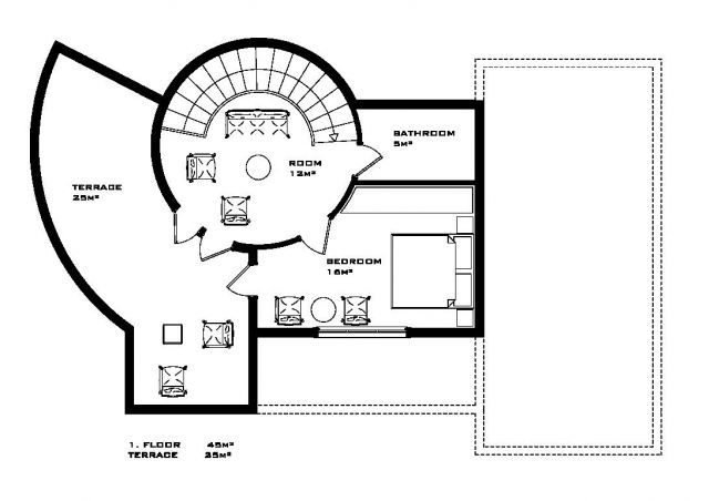
Living space:
135 sq. m.
Plot size:
500 sq. m.
No. of rooms:
4
Details
Details
Type of house:
Villa
Number of floors:
2
Kitchen:
Fitted kitchen
Bathroom:
Shower, Bathtub, Window
Number of bedrooms:
3
Number of bathrooms:
2
Terrace:
2
Fire Place:
yes
Pool:
yes
Basement:
Full cellar
Air condition:
yes
Number of parking spaces:
1 x Outside parking space
Views:
Seaview
Quality of fittings:
Luxury
Year of construction:
2023
Construction phase:
House in planning stage (project planned)
Available from:
2023
Floor covering:
Laminate
Condition:
House in planning stage (project planned)
Heating:
Floor
Further information
Further information
Property description:
Eine preiswerte aber wunderschöne Villa in toller Qualität und Komplettausstattung , sogar der ca. 30qm grosse Pool ist im Preis enthalten, wir müssen nur noch Ihr Grundstück aussuchen und los geht es. Die Bauzeit wird 6 Monate nicht überschreiten. Wir müssen nur noch gemeinsam ein Grundstück aussuchen und los geht es, viel verschiedene Grundstücke sind vorhanden, das Grundstück ist nicht im Preis enthalten.
Furnishings:
Braas Dach
Stahleingangstür
Innentüren Panel
Kälte-, Schall- und hitzebeständige Wände
PVC Fenster / doppelglasig mit elektrischen Aussenjalousien
Standardeinbauküche mit E- Geräten
Wohn- und Schlafzimmer als auch Kinderzimmer mit Laminatböden
Feinputz sowie Stuck mit integrierten Spotlampen
Küche, Bad und Diele mit Keramikfliesen
Bad mit Zwischendecke und integrierten Spotlampen
Unterbauspülkasten im Bad
Badeinbaumöbel
Duschkabine aus Kunststoff
Handtuchtrockner im Bad
Heisswasser Elektrisch
Alle Bäder haben Fussbodenheizung
Sat - TV anschluss
Telefonanschluss
Alle Zimmer haben Klimaanlagen
Treppen- und Balkongeländer aus Aluminium
Swimmingpool
Autoabstellplatz
Stahleingangstür
Innentüren Panel
Kälte-, Schall- und hitzebeständige Wände
PVC Fenster / doppelglasig mit elektrischen Aussenjalousien
Standardeinbauküche mit E- Geräten
Wohn- und Schlafzimmer als auch Kinderzimmer mit Laminatböden
Feinputz sowie Stuck mit integrierten Spotlampen
Küche, Bad und Diele mit Keramikfliesen
Bad mit Zwischendecke und integrierten Spotlampen
Unterbauspülkasten im Bad
Badeinbaumöbel
Duschkabine aus Kunststoff
Handtuchtrockner im Bad
Heisswasser Elektrisch
Alle Bäder haben Fussbodenheizung
Sat - TV anschluss
Telefonanschluss
Alle Zimmer haben Klimaanlagen
Treppen- und Balkongeländer aus Aluminium
Swimmingpool
Autoabstellplatz
Remarks:
Die von uns gemachten Informationen beruhen auf Angaben des Verkäufers bzw. der Verkäuferin. Für die Richtigkeit und Vollständigkeit der Angaben kann keine Gewähr bzw. Haftung übernommen werden. Ein Zwischenverkauf und Irrtümer sind vorbehalten.
General business conditions:
Wir weisen auf unsere Allgemeinen Geschäftsbedingungen hin. Durch weitere Inanspruchnahme unserer Leistungen erklären Sie die Kenntnis und Ihr Einverständnis.
AUF WUNSCH empfehlen wir Ihnen Finanzierungsexperten von namhaften Häusern wie der Deutschen Vermögensberatung und anderen.
Back to the overview



