Objekt 2 von 8
Nächstes Objekt
Vorheriges Objekt
Zurück zur Übersicht
Zurück zur Übersicht
Nächstes Objekt
Vorheriges Objekt
Zurück zur ÜbersichtTorre del Mar: Wunderschöne Reihenhäuser an der Costa del Sol, Torre del Mar
Objekt-Nr.: 12181601
Schnellkontakt
Optionen
Optionen
Basisinformationen
Adresse:
29740 Torre del Mar
Andalucía
Andalucía
Preis:
325.000 €
Wohnfläche ca.:
138,90 m²
Grundstück ca.:
200 m²
Zimmeranzahl:
4
Weitere Informationen
Weitere Informationen
Haustyp:
Reihenhaus
Provisionspflichtig:
nein
Beschreibung
Beschreibung
Objektbeschreibung:
Referenz-Nr.: 12181601
Es handelt sich um eine exklusive Urbanisation, bestehend aus 12 Doppelhäusern mit 3 Schlafzimmern auf einer Etage, die sich gemeinsame Bereiche und einen Pool teilen. So können Sie das Leben im Freien am Meer genießen, ohne auf die Sicherheit und Privatsphäre zu verzichten, die nur eine geschlossene Gemeinschaft Ihnen bieten kann.
Ihr neues Zuhause ist auf einer einzigen Etage untergebracht und verfügt über ein belüftetes Untergeschoss mit Tageslicht.
Die Aufteilung der Räume unterscheidet jedes Haus, der gut durchdachte Grundriss verbindet die Zimmer mit dem zentralen Innenhof und bietet ein großes Wohnzimmer mit integrierter Küche, wodurch das Leben in Ihrem neuen Zuhause einfach wird.
Die reinen Linien und die großen Fenster sind mit mediterranem Weiß vermischt und bewahren den Charme der andalusischen Dörfer rund um das Herz Ihres neuen Zuhauses: Ihren andalusischen Innenhof.
Ein zentraler Innenhof, der jeden Raum mit Licht erfüllt und Ihnen ermöglicht, die Natur zu genießen, ohne Ihr Haus zu verlassen
Patio Homes ist perfekt über die Mittelmeerautobahn zu erreichen, etwa 30 Minuten vom Zentrum von Malaga und nur 35 Minuten vom internationalen Flughafen und weniger als anderthalb Stunden von Granada und seinem Skigebiet im Naturpark Sierra Nevada entfernt. Es ist auch etwas mehr als zwei Stunden von monumentalen Städten wie Cordoba oder Sevilla entfernt.
Mit Blick auf das Mittelmeer erstreckt sich die Costa del Sol über mehr als 150 Kilometer Küste. Sein Name hat es verdient, mehr als 325 Sonnentage im Jahr und ein Klima mit moderaten Temperaturen
Es ist der Schlüssel zu diesem paradiesischen Ort mit Stränden für jeden Geschmack. Aber auch die Nähe zu anderen Provinzen eröffnet vielfältige Möglichkeiten, wie zum Beispiel das nahe gelegene Skigebiet Sierra Nevada in Granada (weniger als zwei Autostunden) oder die Städte Cordoba und Sevilla, wo Sie die Sehenswürdigkeiten der Stadt genießen können Geschichte und seine reiche Gastronomie.
Es ist der perfekte Ort zum Wohnen, wo die Möglichkeiten endlos sind.
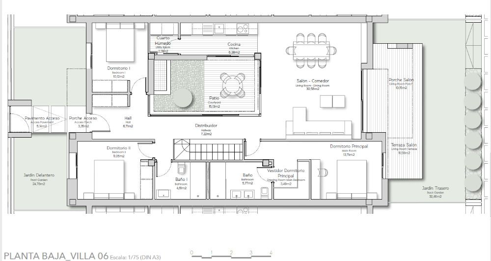
Wir möchten Ihnen diese wunderschönen Häuser am Beispiel des Hauses mit der Nr. 6 vorstellen.
Es handelt sich um eine exklusive Urbanisation, bestehend aus 12 Doppelhäusern mit 3 Schlafzimmern auf einer Etage, die sich gemeinsame Bereiche und einen Pool teilen. So können Sie das Leben im Freien am Meer genießen, ohne auf die Sicherheit und Privatsphäre zu verzichten, die nur eine geschlossene Gemeinschaft Ihnen bieten kann.
Ihr neues Zuhause ist auf einer einzigen Etage untergebracht und verfügt über ein belüftetes Untergeschoss mit Tageslicht.
Die Aufteilung der Räume unterscheidet jedes Haus, der gut durchdachte Grundriss verbindet die Zimmer mit dem zentralen Innenhof und bietet ein großes Wohnzimmer mit integrierter Küche, wodurch das Leben in Ihrem neuen Zuhause einfach wird.
Die reinen Linien und die großen Fenster sind mit mediterranem Weiß vermischt und bewahren den Charme der andalusischen Dörfer rund um das Herz Ihres neuen Zuhauses: Ihren andalusischen Innenhof.
Ein zentraler Innenhof, der jeden Raum mit Licht erfüllt und Ihnen ermöglicht, die Natur zu genießen, ohne Ihr Haus zu verlassen
Patio Homes ist perfekt über die Mittelmeerautobahn zu erreichen, etwa 30 Minuten vom Zentrum von Malaga und nur 35 Minuten vom internationalen Flughafen und weniger als anderthalb Stunden von Granada und seinem Skigebiet im Naturpark Sierra Nevada entfernt. Es ist auch etwas mehr als zwei Stunden von monumentalen Städten wie Cordoba oder Sevilla entfernt.
Mit Blick auf das Mittelmeer erstreckt sich die Costa del Sol über mehr als 150 Kilometer Küste. Sein Name hat es verdient, mehr als 325 Sonnentage im Jahr und ein Klima mit moderaten Temperaturen
Es ist der Schlüssel zu diesem paradiesischen Ort mit Stränden für jeden Geschmack. Aber auch die Nähe zu anderen Provinzen eröffnet vielfältige Möglichkeiten, wie zum Beispiel das nahe gelegene Skigebiet Sierra Nevada in Granada (weniger als zwei Autostunden) oder die Städte Cordoba und Sevilla, wo Sie die Sehenswürdigkeiten der Stadt genießen können Geschichte und seine reiche Gastronomie.
Es ist der perfekte Ort zum Wohnen, wo die Möglichkeiten endlos sind.
Wir möchten Ihnen diese wunderschönen Häuser am Beispiel des Hauses mit der Nr. 6 vorstellen.
Ausstattung:
Wohn-Nutzfläche ca. 262,95 m²
Erdgeschoss ca. 138,90
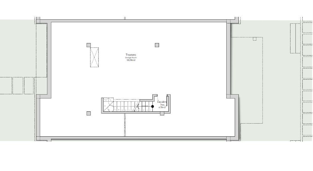
Untergeschoss ca. 124,05
Terrassen ca. 28,63 m²
Privater Garten ca. 57,22
Garage ca. 17,27 m²
3 Doppelschlafzimmer
2 Badezimmer
Gemeinschaftsgarten
Gemeinschaftspool
Solarenergie
Klimaanlage
Geschlossene Wohnanlage
Entfernung zum Strand, Fußweg ca.900 m
Kaufpreis 325.000 €
Erdgeschoss ca. 138,90
Untergeschoss ca. 124,05
Terrassen ca. 28,63 m²
Privater Garten ca. 57,22
Garage ca. 17,27 m²
3 Doppelschlafzimmer
2 Badezimmer
Gemeinschaftsgarten
Gemeinschaftspool
Solarenergie
Klimaanlage
Geschlossene Wohnanlage
Entfernung zum Strand, Fußweg ca.900 m
Kaufpreis 325.000 €
Sonstiges:
Gerne erteilen wir Ihnen weitere Auskünfte oder vereinbaren einen Besichtigungstermin mit Ihnen.
Unsere Angebote sind für Sie als Käufer provisionsfrei!
Weitere Angebote finden Sie unter: www.costadelsol-immo.de
Der Energieausweis wurde laut Auskunft des Verkäufers bereits beauftragt.
Bei der Ausarbeitung unserer Angebote gehen wir mit größter Sorgfalt vor. Die von uns gemachten Informationen beruhen auf Angaben unserer Auftraggeber, für deren Richtigkeit und Vollständigkeit wir keine Gewähr bzw. Haftung übernehmen können. Zwischenverkauf, Preisänderungen und Irrtümer sind vorbehalten. Bei den Preisangaben zu unseren Immobilien handelt es sich um Nettopreise zuzüglich Mehrwertsteuer (I.V.A.) bei Neubauten oder Grunderwerbssteuer (I.T.P.) bei Bestandsimmobilien
Unsere Angebote sind für Sie als Käufer provisionsfrei!
Weitere Angebote finden Sie unter: www.costadelsol-immo.de
Der Energieausweis wurde laut Auskunft des Verkäufers bereits beauftragt.
Bei der Ausarbeitung unserer Angebote gehen wir mit größter Sorgfalt vor. Die von uns gemachten Informationen beruhen auf Angaben unserer Auftraggeber, für deren Richtigkeit und Vollständigkeit wir keine Gewähr bzw. Haftung übernehmen können. Zwischenverkauf, Preisänderungen und Irrtümer sind vorbehalten. Bei den Preisangaben zu unseren Immobilien handelt es sich um Nettopreise zuzüglich Mehrwertsteuer (I.V.A.) bei Neubauten oder Grunderwerbssteuer (I.T.P.) bei Bestandsimmobilien
Anmerkung:
Die von uns gemachten Informationen beruhen auf Angaben des Verkäufers bzw. der Verkäuferin. Für die Richtigkeit und Vollständigkeit der Angaben kann keine Gewähr bzw. Haftung übernommen werden. Ein Zwischenverkauf und Irrtümer sind vorbehalten.
AGB:
Wir weisen auf unsere Allgemeinen Geschäftsbedingungen hin. Durch weitere Inanspruchnahme unserer Leistungen erklären Sie die Kenntnis und Ihr Einverständnis.
AUF WUNSCH empfehlen wir Ihnen Finanzierungsexperten von namhaften Häusern wie der Deutschen Vermögensberatung und anderen.
Zurück zur Übersicht









